Appartement 2 pièces à Bois-Colombes
199 900 €
Référence : 7144425
- 36 m²
- 5 553 €/m²
À vendre – Charmant 2 pièces au cœur de Bois-Colombes
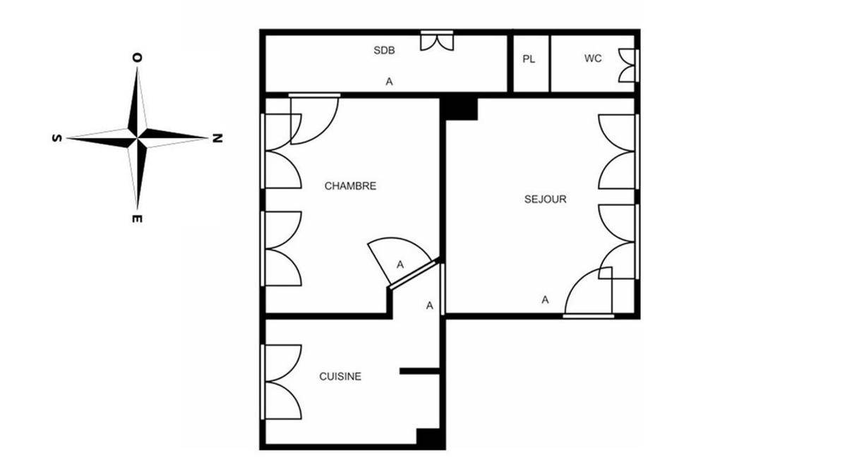
Découvrez ce joli appartement de 36,17 m² au 1er étage d’une petite copropriété, idéalement placé dans le quartier recherché de la Mairie de Bois-Colombes. Vous apprécierez la proximité immédiate des commerces et des transports avec la gare de Bois-Colombes (TRANSILIEN) à 4 minutes à pied, ainsi que des espaces verts qui font le charme de la ville.
L’appartement se compose d’un séjour lumineux de 11,33 m², d’une cuisine de 6,92 m² où l’on peut aisément prendre ses repas, d’une chambre confortable de 10,91 m², ainsi que d’une salle de bains de 4,5 m². Le WC séparé avec lave-mains de 0,76 m2.
Ce 2 pièces représente une belle opportunité, que ce soit pour un premier achat ou un investissement locatif, dans un environnement verdoyant et agréable aux portes de Paris. Un rafraichissement de l’appartement est nécessaire pour profiter pleinement du potentiel de ce bien.
Contactez-nous dès aujourd’hui pour organiser une visite et laissez-vous séduire par le charme de cet appartement unique.
Chauffage: collectif au gaz
Eau chaude : individuelle électrique.
Taxe foncière : 491 €
Charges de copropriété : 192€ /mois
Nombre de lots : 7 lots
Pas de procédure en cours.
Honoraires d’agence à la charge acquéreur : 10 600 € (4% + 3000 euros) inclus dans le prix de vente de 199 900 euros. Montant estimé des dépenses annuelles d’énergie pour un usage standard, établi à partir des prix de l’énergie de l’année 2021,2022,2023: 1 240 € ~ 1 730 € – RCS 78989753500025 – Caisse de garantie SOCAF Gestion 220000 EUR – Caisse de garantie SOCAF Transaction 120000 EUR. – Les informations sur les risques auxquels ce bien est exposé sont disponibles sur le site Géorisques : www.georisques.gouv.fr
Découvrez ce joli appartement de 36,17 m² au 1er étage d’une petite copropriété, idéalement placé dans le quartier recherché de la Mairie de Bois-Colombes. Vous apprécierez la proximité immédiate des commerces et des transports avec la gare de Bois-Colombes (TRANSILIEN) à 4 minutes à pied, ainsi que des espaces verts qui font le charme de la ville.
L’appartement se compose d’un séjour lumineux de 11,33 m², d’une cuisine de 6,92 m² où l’on peut aisément prendre ses repas, d’une chambre confortable de 10,91 m², ainsi que d’une salle de bains de 4,5 m². Le WC séparé avec lave-mains de 0,76 m2.
Ce 2 pièces représente une belle opportunité, que ce soit pour un premier achat ou un investissement locatif, dans un environnement verdoyant et agréable aux portes de Paris. Un rafraichissement de l’appartement est nécessaire pour profiter pleinement du potentiel de ce bien.
Contactez-nous dès aujourd’hui pour organiser une visite et laissez-vous séduire par le charme de cet appartement unique.
Chauffage: collectif au gaz
Eau chaude : individuelle électrique.
Taxe foncière : 491 €
Charges de copropriété : 192€ /mois
Nombre de lots : 7 lots
Pas de procédure en cours.
Honoraires d’agence à la charge acquéreur : 10 600 € (4% + 3000 euros) inclus dans le prix de vente de 199 900 euros. Montant estimé des dépenses annuelles d’énergie pour un usage standard, établi à partir des prix de l’énergie de l’année 2021,2022,2023: 1 240 € ~ 1 730 € – RCS 78989753500025 – Caisse de garantie SOCAF Gestion 220000 EUR – Caisse de garantie SOCAF Transaction 120000 EUR. – Les informations sur les risques auxquels ce bien est exposé sont disponibles sur le site Géorisques : www.georisques.gouv.fr
Diagnostics énergétiques
Consommation énergétique (DPE)
Émissions de Gaz à effet de serre (GES)
Information sur les émissions de gaz à effet de serre non disponible.
Plus d’informations sur le bien
Pièces |
|
Nombre de pièces | 2 |
Chambres | 1 |
Salle de bain | 1 |
Commodités |
|
Étage | 1 |
Nombre d'étage | 2 |
Energétique |
|
Année de construction | 1948 |
Logement proche de Bois-Colombes (10 km)
Nous vous proposons de découvrir aussi cette sélection de logements situés à proximité de Bois-Colombes et qui seraient susceptibles de vous intéresser.

199 900 €
Appartement 2 pièces à Bois-Colombes
À vendre – Charmant 2 pièces au cœur de Bois-ColombesDécouvrez…

599 900 €
Maison de 4 pièces à Bois-Colombes à…
Votre future maison à Bois-Colombes — Calme, charme et potentiel…

559 000 €
Bel appartement à vendre de 4 pièces…
Votre nouveau chez-vous au cœur du quartier recherché des Vallées…

390 000 €
LA PLAINE ST DENIS – BEL APPARTEMENT…
Découvrez cet appartement entièrement rénové de 79,02 m², situé au…