Appartement 3 pièces + CAVE et PARKING -Bois-Colombes Centre
472 500 €
Référence : 7285448
- 75 m²
- 6 300 €/m²
Situé à Bois-Colombes gare, découvrez ce charmant appartement avec travaux à prévoir et traversant de 75,08 m² situé au troisième étage sur cinq avec ascenseur d’un immeuble exposé Sud Est/Nord Ouest et idéalement placé, à seulement 2 minutes à pied de la gare de Bois-Colombes. Celle-ci permet de rejoindre Paris Saint-Lazare en moins de 10 minutes grâce au transilien ligne J, faisant de ce bien une adresse parfaite pour les actifs en quête d’un quotidien pratique tout en profitant d’un cadre paisible.
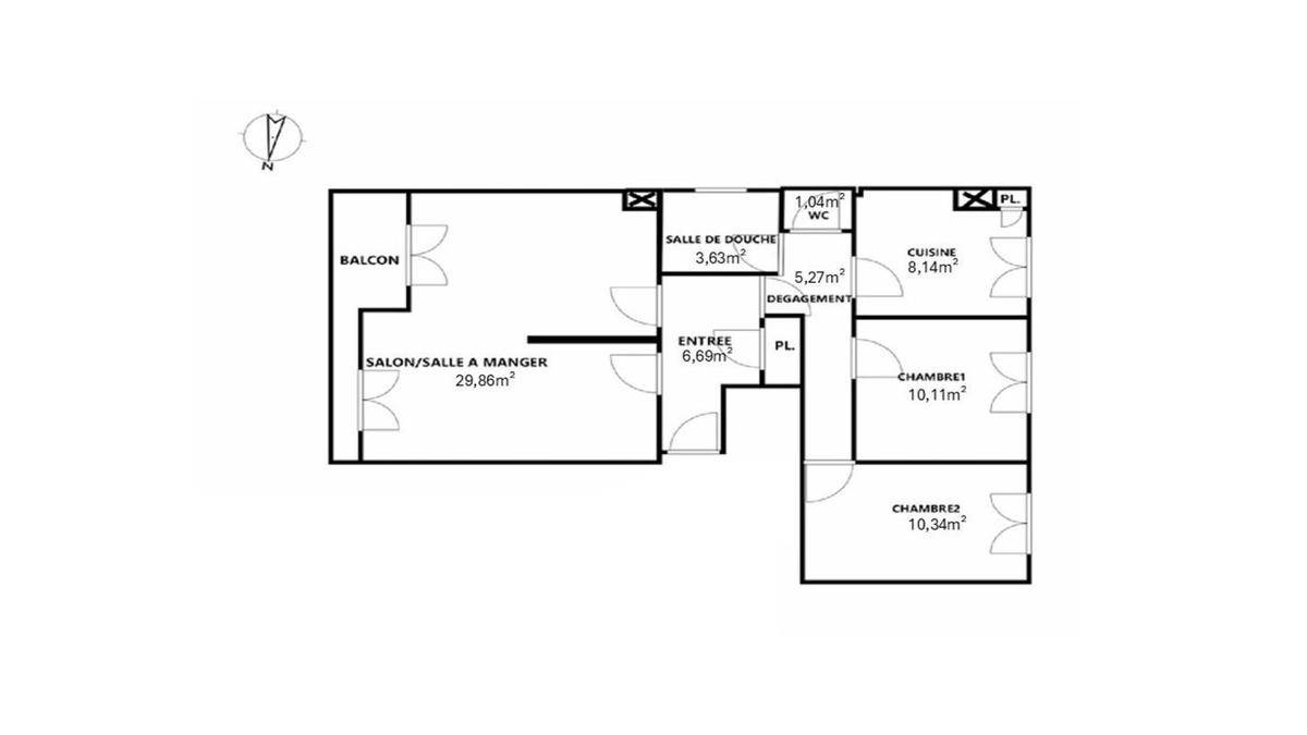
L’appartement A RENOVER se distingue par sa belle luminosité et son caractère traversant. L’appartement se comporte d’une entrée de 6,69m², un vaste salon/salle à manger de 29,86m² offrant un espace de vie rare dans le secteur, propice à la détente comme à la réception, une cuisine de 8,14m², indépendante, s’intègre parfaitement à l’organisation du lieu. Deux chambres de 10,11m² et 10,34m² (possibilité de 3ème chambre) complètent l’espace nuit, accompagnées d’une salle de douche de 3,63 et de WC séparés. L’ensemble bénéficie d’un agencement cohérent et d’un dégagement fonctionnel permettant une circulation fluide.
Situé dans le quartier recherché de la Gare de Bois-Colombes et de l’église Notre Dame de Bon Secours, l’appartement offre un environnement calme tout en étant proche des commerces, et des transports. Sa luminosité, la taille généreuse du séjour et son exposition traversante constituent de véritables atouts au quotidien.
Pour parfaire ce bien, une cave en sous-sol ainsi qu’une place de parking extérieur sont inclus, apportant un confort supplémentaire très apprécié en centre-ville.
Une belle opportunité à saisir sans tarder.
Double vitrage
DPE : D
Chauffage : Collectif au gaz par chaudière
Eau chaude : Collective au gaz par chaudière
Taxe foncière : 1321 €
Charges de copropriété : 100 €/mois
Nombre de lots : 37
Pas de procédure en cours.
Travaux à prévoir dans l’appartement : budget estimé à 80 000 euros environ
Honoraires d’agence à la charge acquéreur : 22 500 € (5%) inclus dans le prix de vente de 472 500 euros. Montant estimé des dépenses annuelles d’énergie pour un usage standard, établi à partir des prix de l’énergie des 2021, 2022, 2023 : 1 250 € ~ 1 730 € – RCS 78989753500025 – Caisse de garantie SOCAF Gestion 220000 EUR – Caisse de garantie SOCAF Transaction 120000 EUR. – Les informations sur les risques auxquels ce bien est exposé sont disponibles sur le site Géorisques : www.georisques.gouv.fr
L’appartement A RENOVER se distingue par sa belle luminosité et son caractère traversant. L’appartement se comporte d’une entrée de 6,69m², un vaste salon/salle à manger de 29,86m² offrant un espace de vie rare dans le secteur, propice à la détente comme à la réception, une cuisine de 8,14m², indépendante, s’intègre parfaitement à l’organisation du lieu. Deux chambres de 10,11m² et 10,34m² (possibilité de 3ème chambre) complètent l’espace nuit, accompagnées d’une salle de douche de 3,63 et de WC séparés. L’ensemble bénéficie d’un agencement cohérent et d’un dégagement fonctionnel permettant une circulation fluide.
Situé dans le quartier recherché de la Gare de Bois-Colombes et de l’église Notre Dame de Bon Secours, l’appartement offre un environnement calme tout en étant proche des commerces, et des transports. Sa luminosité, la taille généreuse du séjour et son exposition traversante constituent de véritables atouts au quotidien.
Pour parfaire ce bien, une cave en sous-sol ainsi qu’une place de parking extérieur sont inclus, apportant un confort supplémentaire très apprécié en centre-ville.
Une belle opportunité à saisir sans tarder.
Double vitrage
DPE : D
Chauffage : Collectif au gaz par chaudière
Eau chaude : Collective au gaz par chaudière
Taxe foncière : 1321 €
Charges de copropriété : 100 €/mois
Nombre de lots : 37
Pas de procédure en cours.
Travaux à prévoir dans l’appartement : budget estimé à 80 000 euros environ
Honoraires d’agence à la charge acquéreur : 22 500 € (5%) inclus dans le prix de vente de 472 500 euros. Montant estimé des dépenses annuelles d’énergie pour un usage standard, établi à partir des prix de l’énergie des 2021, 2022, 2023 : 1 250 € ~ 1 730 € – RCS 78989753500025 – Caisse de garantie SOCAF Gestion 220000 EUR – Caisse de garantie SOCAF Transaction 120000 EUR. – Les informations sur les risques auxquels ce bien est exposé sont disponibles sur le site Géorisques : www.georisques.gouv.fr
Diagnostics énergétiques
Consommation énergétique (DPE)
Émissions de Gaz à effet de serre (GES)
Plus d’informations sur le bien
Pièces |
|
| Nombre de pièces | 3 |
| Chambres | 2 |
| Salle de bain | 1 |
Commodités |
|
| Étage | 3 |
| Nombre d'étage | 5 |
| Ascenseur | OUI |
| Interphone | OUI |
Extérieur |
|
| Terrasse | OUI |
Energétique |
|
| Année de construction | 1970 |
Logement proche de Bois-Colombes (10 km)
Nous vous proposons de découvrir aussi cette sélection de logements situés à proximité de Bois-Colombes et qui seraient susceptibles de vous intéresser.
472 500 €
Appartement 3 pièces + CAVE et PARKING…
Situé à Bois-Colombes gare, découvrez ce charmant appartement avec travaux…
1 150 000 €
Vente 3 pièces rénové à Paris 4…
Venez découvrir ce superbe appartement de 80 m2, entièrement rénové…
1 372 €
3 pièces de 69m² avec balcon, cave…
Boulevard Charles de Gaulle à COLOMBESDans une résidence de standing,…
1 290 000 €
Bel appartement 3 chambres balcons et parking…
Venez découvrir cet élégant appartement de 132 m2, situé au…
262 000 €
Grand studio 28m2 dernier étage Boulogne-Billancourt
Venez découvrir ce grand studio de 27,55 m2 Carrez, situé au sixième…
289 000 €
MAISON – 2 CHAMBRES AVEC JARDIN -PROXIMITE…
KW Partners, François Joly et Sylvie Thierry vous présentent cette…
345 000 €
PARIS 9ème – FOLIES BERGERES – BEAU…
Situé à équidistance des Métros GRANDS BOULEVARDS, CADET et LE…