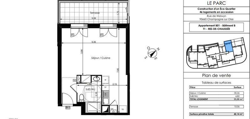
STUDIO B01 – TERRASSE – Champagne Sur Oise

184 500 €
Référence : 5323
  • 35 m²
  • 5 271 €/m²
Située à Champagne sur Oise, Nous vous proposons un studio comprenant une entrée, un salon avec cuisine US ouvrant sur une terrasse de + de 10m², une salle d’eau avec wc.
Un parking en sous-sol inclus.

Diagnostics énergétiques

Consommation énergétique (DPE)

Information sur la consommation énergétique non disponible.

Émissions de Gaz à effet de serre (GES)

Information sur les émissions de gaz à effet de serre non disponible.

Plus d’informations sur le bien

Pièces

Nombre de pièces 1
Salle de bain 1

Commodités

Nombre d'étage 2

CONTACTER

+ Modifier le message

Logement proche de Champagne-sur-Oise (10 km)

Nous vous proposons de découvrir aussi cette sélection de logements situés à proximité de Champagne-sur-Oise et qui seraient susceptibles de vous intéresser.

Image de l'annonce 3 PIECES A21 + BALCON Champagne Sur…
282 000 €

3 PIECES A21 + BALCON Champagne Sur…

Située à Champagne sur Oise, avec une architecture classique, sobre…

  • 59 m²
  • 4 780 €/m²
Image de l'annonce MAISON 4 PIECES AVEC JARDIN - D09…
348 500 €

MAISON 4 PIECES AVEC JARDIN – D09…

Située à Champagne sur Oise, avec une architecture classique, sobre…

  • 83 m²
  • 4 199 €/m²
Image de l'annonce 4 PIECES A27+ BALCON - Champagne Sur…
348 500 €

4 PIECES A27+ BALCON – Champagne Sur…

Située à Champagne sur Oise, avec une architecture classique, sobre…

  • 77 m²
  • 4 526 €/m²
Image de l'annonce Maison 5 pièces avec 4 chambres -…
399 500 €

Maison 5 pièces avec 4 chambres -…

Découvrez cette superbe maison de 5 pièces ? 99 m²…

  • 98 m²
  • 4 077 €/m²
Image de l'annonce 2 PIECES B21 - Champagne Sur Oise
196 000 €

2 PIECES B21 – Champagne Sur Oise

Située à Champagne sur Oise, avec une architecture classique, sobre…

  • 37 m²
  • 5 297 €/m²
Image de l'annonce STUDIO B01 - TERRASSE - Champagne Sur…
184 500 €

STUDIO B01 – TERRASSE – Champagne Sur…

Située à Champagne sur Oise, Nous vous proposons un studio…

  • 35 m²
  • 5 271 €/m²
Image de l'annonce Bornel (60) ? Maison entièrement refaite à…
299 000 €

Bornel (60) ? Maison entièrement refaite à…

Découvrez cette maison familiale rénovée avec soin, située dans un…

  • 95 m²
  • 3 147 €/m²
Image de l'annonce Appartement
153 000 €

Appartement

Dans un ancien corps de ferme rénové, appartement situé au…

  • 41 m²
  • 3 732 €/m²
Image de l'annonce BORNEL - Maison familiale avec jardin et…
346 500 €

BORNEL – Maison familiale avec jardin et…

Découvrez cette agréable maison familiale située à Bornel, dans l'Oise,…

  • 95 m²
  • 3 647 €/m²
Image de l'annonce Beaumont-sur-Oise 4 chambres 95 m² Année construction…
273 700 €

Beaumont-sur-Oise 4 chambres 95 m² Année construction…

En exclusivité, venez découvrir cette maison familiale pleine de potentiel,…

  • 95 m²
  • 2 881 €/m²

L’actualité immobilière à Champagne-sur-Oise