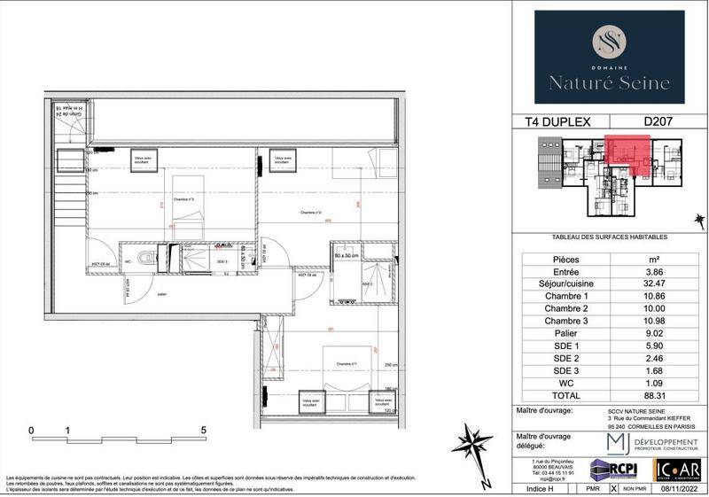
Appartement Duplex 3 chambres avec Balcon

458 000 €
Référence : D207_Nature_seine
  • 88 m²
  • 5 205 €/m²
Découvrez cet appartement duplex tout juste livré au sein d’une résidence neuve de standing.
3 chambres, balcon de 6,46m2 orienté plein sud, séjour de 32,5m2, cuisine entièrement équipée, triple salle d’eau, wc indépendants.
Possibilité d’acheter une place de parking en supplément
Contactez-nous afin de planifier une visite

Diagnostics énergétiques

Consommation énergétique (DPE)

ABCDEFG

Émissions de Gaz à effet de serre (GES)

ABCDEFG

Plus d’informations sur le bien

Pièces

Nombre de pièces 4
Chambres 3
Salle de bain 2

Commodités

Étage 3
Nombre d'étage 2

Energétique

Année de construction 2025

CONTACTER

+ Modifier le message

Logement proche de Cormeilles-en-Parisis (10 km)

Nous vous proposons de découvrir aussi cette sélection de logements situés à proximité de Cormeilles-en-Parisis et qui seraient susceptibles de vous intéresser.

Image de l'annonce Duplex de charme de 86 m2 sous…
599 000 €

Duplex de charme de 86 m2 sous…

Coup de cœur !Découvrez ce très beau duplex de 86…

  • 86 m²
  • 6 965 €/m²
Image de l'annonce APPARTEMENT 4 PIECES - 3 CHAMBRES -…
279 000 €

APPARTEMENT 4 PIECES – 3 CHAMBRES -…

Découvrez ce charmant appartement de 65 m², niché au cœur…

  • 65 m²
  • 4 292 €/m²
Image de l'annonce Epinay sur Seine limite Enghien les Bains…
250 000 €

Epinay sur Seine limite Enghien les Bains…

Exclusivité.Epinay sur Seine limite Enghien les Bains!Abriculteurs vous présente bel…

  • 79 m²
  • 3 165 €/m²
Image de l'annonce Maison performante - 111m2 - Argenteuil Val…
409 000 €

Maison performante – 111m2 – Argenteuil Val…

Bienvenue chez Abriculteurs, l'agence familiale qui s'engage à un service…

  • 107 m²
  • 3 822 €/m²
Image de l'annonce Appartement Duplex 3 chambres avec Balcon
458 000 €

Appartement Duplex 3 chambres avec Balcon

Découvrez cet appartement duplex tout juste livré au sein d'une…

  • 88 m²
  • 5 205 €/m²
Image de l'annonce Hypercentre Colombes – 4 pièces traversant -…
354 000 €

Hypercentre Colombes – 4 pièces traversant -…

Exclusivité.Abriculteurs vous présente bel appartement familial de 66,16 m², situé…

  • 66 m²
  • 5 364 €/m²
Image de l'annonce Spacieux - Appartement 4 Pièces - 90m²…
239 000 €

Spacieux – Appartement 4 Pièces – 90m²…

Bienvenue chez Abriculteurs, l'agence familiale qui s'engage à un service…

  • 90 m²
  • 2 656 €/m²
Image de l'annonce Beau potentiel - Appartement 3 Pièces -…
215 000 €

Beau potentiel – Appartement 3 Pièces -…

Bienvenue chez Abriculteurs, l'agence familiale qui s'engage à un service…

  • 69 m²
  • 3 116 €/m²
Image de l'annonce Courbevoie – Terrasse des Reflets | 3…
509 000 €

Courbevoie – Terrasse des Reflets | 3…

Bienvenue chez Abriculteurs, l'agence familiale qui s'engage à un service…

  • 86 m²
  • 5 919 €/m²
Image de l'annonce Familial - Appartement T4 - 77m² -…
229 000 €

Familial – Appartement T4 – 77m² -…

Bienvenue chez Abriculteurs, l'agence familiale qui s'engage à un service…

  • 75 m²
  • 3 053 €/m²

L’actualité immobilière à Cormeilles-en-Parisis