Maison à construire à Les Clayes-sous-Bois (78340)

412 500 €
Référence : 3678004
  • 110 m²
  • 3 750 €/m²
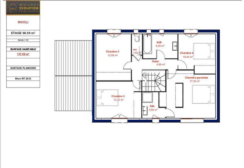
Maison neuve 4 pièces – 110 m² aux Clayes-sous-Bois – ZONE ANRU (TVA 5.5%)
Idéale première acquisition – Environnement familial – Proche Paris

Vous souhaitez devenir propriétaire et offrir un cadre de vie agréable à votre famille ?
Découvrez cette maison neuve de 110 m², située à Les Clayes-sous-Bois, dans un secteur recherché à proximité immédiate du centre-ville.

✨ Une maison pensée pour la vie de famille
4 chambres (idéales pour enfants, télétravail ou chambre d’amis)
Belle pièce de vie lumineuse
Cuisine fonctionnelle à aménager selon vos envies
2 salles de bains pratiques au quotidien
Maison sur 2 niveaux

Terrain privatif de 240 m² pour jardin, jeux d’enfants et moments en famille
Un cadre parfait pour voir grandir vos enfants dans un environnement calme et résidentiel.

📍 Un emplacement pratique pour le quotidien
À 20 minutes à pied de la gare de Villepreux-Les Clayes
Paris Montparnasse à 40 minutes via le Transilien Ligne N
Écoles (maternelle, élémentaire, collège) à moins de 10 minutes à pied
Commerces, supermarché, boulangeries à proximité
Bibliothèque, tennis, piscine

🏗️ Les avantages de construire avec Maisons Evolution
Faire construire, c’est investir dans un logement moderne, économe en énergie et sécurisé :
✔ Maison conforme RE2020 (faibles consommations énergétiques)
✔ Accompagnement personnalisé à chaque étape
✔ Contrat CCMI avec garanties constructeur (décennale, parfait achèvement…)
✔ Possibilité d’adapter les plans à vos besoins
✔ Budget maîtrisé et suivi complet

💰 Un vrai coup de pouce pour les primo-accédants
Située en zone ANRU, cette maison peut bénéficier d’une TVA réduite à 5,5 % sur la construction (au lieu de 20 %) un avantage financier majeur pour faciliter votre première acquisition.

💵 Prix : 412 500 € (hors frais annexes)

📞 Pour plus d’informations ou étudier votre projet :
Contactez Caroline BETHERY au (Numéro supprimé)

L’agence Maisons

Diagnostics énergétiques

Consommation énergétique (DPE)

ABCDEFG

Émissions de Gaz à effet de serre (GES)

Information sur les émissions de gaz à effet de serre non disponible.

Plus d’informations sur le bien

Pièces

Nombre de pièces 4
Chambres 4

Éligibilités

TVA 5.5% OUI
Zone ANRU OUI

CONTACTER

+ Modifier le message

Logement proche de Les Clayes-sous-Bois (10 km)

Nous vous proposons de découvrir aussi cette sélection de logements situés à proximité de Les Clayes-sous-Bois et qui seraient susceptibles de vous intéresser.

Image de l'annonce Maison à construire à Les Clayes-sous-Bois (78340)
398 390 €

Maison à construire à Les Clayes-sous-Bois (78340)

Maison neuve 6 pièces – 120 m² aux Clayes-sous-Bois -…

  • 120 m²
  • 3 320 €/m²
Image de l'annonce Maison à construire à Les Clayes-sous-Bois (78340)
412 500 €

Maison à construire à Les Clayes-sous-Bois (78340)

Maison neuve 4 pièces – 110 m² aux Clayes-sous-Bois -…

  • 110 m²
  • 3 750 €/m²
Image de l'annonce LA PORTE DE CHAMBOURCY MAISON
641 000 €

LA PORTE DE CHAMBOURCY MAISON

DERNIERES MAISONS DISPONIBLES A CHAMBOURCY (78) ! Devenez propriétaire dans…

  • 119.59 m²
  • 5 360 €/m²
Image de l'annonce MAISON – ELANCOURT – QUARTIER NOUVELLE AMSTERDAM…
285 000 €

MAISON – ELANCOURT – QUARTIER NOUVELLE AMSTERDAM…

Elancourt-Dans un quartier résidentiel calme et recherché, proche des commodités…

  • 113 m²
  • 2 522 €/m²
Image de l'annonce Appartement 5 pièces - Vanikoro
280 000 €

Appartement 5 pièces – Vanikoro

Soldes hivernales à Vanikoro : Profitez d'une remise de 2…

  • 89.06 m²
  • 3 144 €/m²
Image de l'annonce La Porte de Chambourcy
316 000 €

La Porte de Chambourcy

NOUVEAUX APPARTEMENTS DISPONIBLES A CHAMBOURCY (78) ! Devenez propriétaire dans…

  • 66.18 m²
  • 4 775 €/m²
Image de l'annonce Appartement T1 19m² meublé et équipé toutes…
838 €

Appartement T1 19m² meublé et équipé toutes…

La résidence Sweetly Versailles Saint Cyr est située au cœur…

  • 19 m²
  • 44 €/m²
Image de l'annonce Appartement meublé - LMNP géré
85 400 €

Appartement meublé – LMNP géré

Offre dédiée à l'investissement locatif en LMNP sous bail commercial.…

  • 31 m²
  • 2 755 €/m²
Image de l'annonce LA PORTE DE CHAMBOURCY MAISON
784 000 €

LA PORTE DE CHAMBOURCY MAISON

DERNIERES MAISONS DISPONIBLES A CHAMBOURCY (78) ! Devenez propriétaire dans…

  • 145.45 m²
  • 5 390 €/m²
Image de l'annonce LA PORTE DE CHAMBOURCY MAISON
784 000 €

LA PORTE DE CHAMBOURCY MAISON

DERNIERES MAISONS DISPONIBLES A CHAMBOURCY (78) ! Devenez propriétaire dans…

  • 145.4 m²
  • 5 392 €/m²

L’actualité immobilière à Les Clayes-sous-Bois