Maison à construire à Haillicourt (62940)

182 152 €
Référence : 3554073
  • 93 m²
  • 1 959 €/m²
Idéalement situé à proximité de Bruay la Buissière, Lens et Béthune, construisez la maison de vos rêves à Haillicourt
Terrain viabilisé et projet en TVA à 5,5%
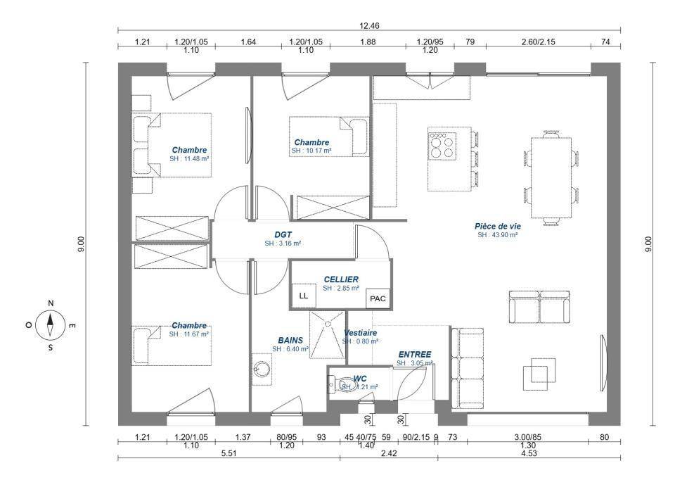
Maion France Confort vous propose cette maison de Plain pied de 93m2 à proximité des axes autoroutiers.
Cette maison contemporaine, se compose d’une belle pièce de vie ouverte et lumineuse, une cellier, 3 chambres et une salle de bains
Maison conforme à la réglementation environnementale (RE2020), qui vous assurera des économies d’énergie, notamment avec sa pompe à chaleur, sa domotique permettant la gestion à distance des volets roulants et du chauffage, les pièces de vie sont carrelées et les chambres sont prêtes à recevoir le recevoir le parquet
Nous pouvons aussi vous proposer d’autres modèles de maisons (avec garage, étage …)
Elle est proposée à l’achat pour 183 152 €.
N’hésitez pas à prendre contact avec Carole DOLLET ((Numéro supprimé)) pour toute information sur cette maison ou sur les démarches à suivre. Maisons France Confort Hénin-Beaumont est là pour vous accompagner à toutes les étapes de l’achat.

Diagnostics énergétiques

Consommation énergétique (DPE)

ABCDEFG

Émissions de Gaz à effet de serre (GES)

Information sur les émissions de gaz à effet de serre non disponible.

Plus d’informations sur le bien

Pièces

Nombre de pièces 5
Chambres 3

Éligibilités

TVA 5.5% OUI

CONTACTER

+ Modifier le message

Logement proche de Haillicourt (10 km)

Nous vous proposons de découvrir aussi cette sélection de logements situés à proximité de Haillicourt et qui seraient susceptibles de vous intéresser.

Image de l'annonce Maison à construire à Houdain (62150)
261 000 €

Maison à construire à Houdain (62150)

EMPLACEMENT PRIVILÉGIÉ – MAISON NEUVE A CONSTRUIRE VOTRE CONSEILLER :…

  • 125 m²
  • 2 088 €/m²
Image de l'annonce Maison à construire à Houdain (62150)
178 400 €

Maison à construire à Houdain (62150)

EMPLACEMENT PRIVILÉGIÉ – MAISON NEUVE DE PLAIN-PIED A CONSTRUIRE VOTRE…

  • 93 m²
  • 1 918 €/m²
Image de l'annonce Terrain à bâtir à Houdain (62150)
51 146 €

Terrain à bâtir à Houdain (62150)

Terrain de 404 m² viabilisé et borné en vente à…

  • 404 m²
  • 127 €/m²
Image de l'annonce Maison à construire à Noeux-les-Mines (62290)
202 500 €

Maison à construire à Noeux-les-Mines (62290)

Maison de 4 pièces (75 m²) en vente à Noeux-les-MinesIDÉALEMENT…

  • 75 m²
  • 2 700 €/m²
Image de l'annonce Maison à construire à Noeux-les-Mines (62290)
163 000 €

Maison à construire à Noeux-les-Mines (62290)

VENTE d'une maison de 3 pièces (60 m²) à Noeux-les-MinesIDÉALEMENT…

  • 60 m²
  • 2 717 €/m²
Image de l'annonce Terrain à bâtir à Noeux-les-Mines (62290)
41 765 €

Terrain à bâtir à Noeux-les-Mines (62290)

VENTE d'un terrain de 526 m² à Noeux-les-MinesIDÉALEMENT SITUÉ – À vendre…

  • 526 m²
  • 79 €/m²
Image de l'annonce Maison à construire à Noeux-les-Mines (62290)
188 000 €

Maison à construire à Noeux-les-Mines (62290)

VENTE : maison T5 (80 m²) à Noeux-les-MinesIDÉALEMENT SITUÉE – MAISON 5…

  • 80 m²
  • 2 350 €/m²
Image de l'annonce Maison à construire à Haillicourt (62940)
182 152 €

Maison à construire à Haillicourt (62940)

Idéalement situé à proximité de Bruay la Buissière, Lens et…

  • 93 m²
  • 1 959 €/m²
Image de l'annonce Construction Calonne Ricouart
190 750 €

Construction Calonne Ricouart

Maison neuve à construireNous vous proposons ce projet de Maison…

  • 85 m²
  • 2 244 €/m²
Image de l'annonce Pavillon Vendin-lès-Béthune
195 000 €

Pavillon Vendin-lès-Béthune

Maison neuve à construireNous vous proposons ce projet de Maison…

  • 95 m²
  • 2 053 €/m²

L’actualité immobilière à Haillicourt