T3 (colocation)

745 €/mois
Référence : REGI-SPACIO-T3
  • 60 m²
  • N/A
Résidence SPACIO: Appartement T3 Idéal colocation équipé dans une résidence-services pour étudiants de moins de 30ans
Résidence neuve

16 BD SERGENT TRIAIRE

PRIX : 495€/personne

Les loyers comprennent les provisions pour charges (eau et électricité)
La WIFI est également incluse dans le loyer.

Bénéficiez de services adaptés : Laverie, Salle de sport, salle commune.

Accès à la résidence sécurisé par badge.

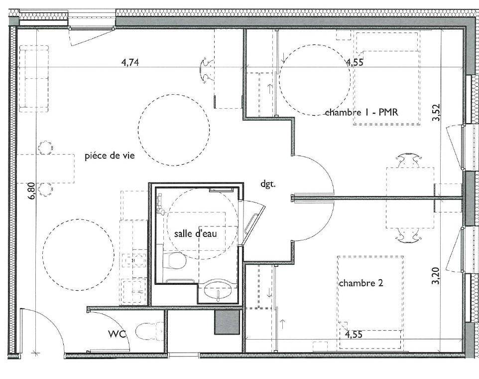
Logement composé d’une pièce avec coin cuisine équipée, deux chambres d’une salle de bain. Bien aménagé et fonctionnel, il disposera d’un bureau, d’une table et d’un lit.

Pas de frais d’agence.
Pas de frais de dossier

REF YELLOME GROUPE PROMOLOGIS : REGI-SPACIO-EXCLUSIF
Les informations sur les risques auxquels ce bien est exposé sont disponibles sur le site Géorisques : www. georisques. gouv. fr

Diagnostics énergétiques

Consommation énergétique (DPE)

ABCDEFG

Émissions de Gaz à effet de serre (GES)

ABCDEFG

Plus d’informations sur le bien

Pièces

Nombre de pièces 3
Chambres 2
Salle de bain 1

Commodités

Nombre d'étage 8
Ascenseur OUI

Charges

Montant du loyer 745 €
Montant des charges 245 €

CONTACTER

+ Modifier le message

Logement proche de Nîmes (10 km)

Nous vous proposons de découvrir aussi cette sélection de logements situés à proximité de Nîmes et qui seraient susceptibles de vous intéresser.

Image de l'annonce NIMES : Maison monopropriété composée d'un appartement…
450 000 €

NIMES : Maison monopropriété composée d’un appartement…

Dorel SOLER DE L'AGENCE REGARD IMMOBILIER VOUS PROPOSE CET APPARTEMENT…

  • 240 m²
  • 1 875 €/m²
Image de l'annonce Maison individuelle + immeuble collectif Nîmes
369 000 €

Maison individuelle + immeuble collectif Nîmes

MARIANNE SERVILE DE L' AGENCE REGARD VOUS PROPOSE EN EXCLUSIVITE…

  • 174 m²
  • 2 121 €/m²
Image de l'annonce Villa plain-pied contemporaine en ossature bois avec…
399 000 €

Villa plain-pied contemporaine en ossature bois avec…

RUBEN STREET DE L'AGENCE REGARD VOUS PROPOSE CETTE VILLA CONTEMPORAINE…

  • 100 m²
  • 3 990 €/m²
Image de l'annonce Location : Appartement 3 pièces de 62…
720 €

Location : Appartement 3 pièces de 62…

L'AGENCE REGARD VOUS PROPOSE À LA LOCATION CET APPARTEMENT DE…

  • 61 m²
  • 12 €/m²
Image de l'annonce Appartement T3 – 58 m² avec terrasse…
160 000 €

Appartement T3 – 58 m² avec terrasse…

BERENGERE JOURDAN DE L'AGENCE REGARD VOUS PROPOSE cet Appartement T3…

  • 58 m²
  • 2 759 €/m²
Image de l'annonce A LOUER NIMES P2 de 35 m²
550 €

A LOUER NIMES P2 de 35 m²

Marianne SERVILE de L'AGENCE REGARD vous propose à la location,…

  • 35 m²
  • 16 €/m²
Image de l'annonce MAISON SITUEE DANS LE QUARTIER RECHERCHE DE…
495 000 €

MAISON SITUEE DANS LE QUARTIER RECHERCHE DE…

L'AGENCE REGARD IMMOBILIER VOUS PROPOSE EN EXCLUSIVITE CETTE MAISON SITUEE…

  • 130 m²
  • 3 808 €/m²
Image de l'annonce Maison entièrement rénovée avec piscine quartier Serre…
315 000 €

Maison entièrement rénovée avec piscine quartier Serre…

OLIVIER PERRIER DE L'AGENCE REGARD VOUS PROPOSE EN EXCLUSIVITE CETTE…

  • 86 m²
  • 3 663 €/m²
Image de l'annonce Appartement de 75M2 avec Jardin de 356M2
189 000 €

Appartement de 75M2 avec Jardin de 356M2

OLIVIER PERRIER DE L'AGENCE REGARD VOUS PRESENTE CET APPARTEMENT BAS…

  • 75 m²
  • 2 520 €/m²
Image de l'annonce APPARTEMENT DE 150M² RÉNOVÉ SITUÉ DANS LE…
450 000 €

APPARTEMENT DE 150M² RÉNOVÉ SITUÉ DANS LE…

L'AGENCE REGARD VOUS PRÉSENTE CE BEL APPARTEMENT DE 150M², RÉNOVÉ…

  • 150 m²
  • 3 000 €/m²

L’actualité immobilière à Nîmes