T2
129 500 €
Référence : 1411
- 51 m²
- 2 539 €/m²
APPEL D’OFFRES A PRIX PROGRESSIF : les propositions seront reçues en ligne sur la plateforme IMMOFIT, du 16/02/2025 à 19H00 au 16/02/2026 à 22H30 (Europe/Paris). Le prix affiché sur la présente annonce correspond à un prix de première proposition possible, honoraires de négociation inclus ou honoraires à la charge de l’acquéreur, et les participants pourront soumettre leurs propositions par paliers progressifs minimums de 5000€, jusqu’à l’heure de clôture de l’appel d’offres interactif (précisée ci-dessus).
La participation à l’appel d’offres est soumise à agrément préalable. Toutes les propositions seront transmises au vendeur, lequel restera libre dans la sélection de celle à laquelle il entend donner suite. Une proposition en ligne pendant l’appel d’offres interactif ne constitue pas une offre ferme et précise au sens de l’article 1114 du Code Civil, mais une proposition d’achat.
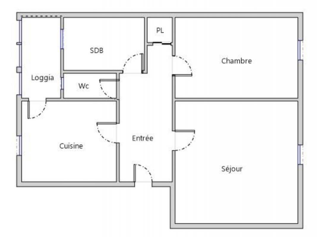
Ce charmant appartement de 51 m², situé en RDC surélevé, vous accueille dans un cadre paisible à Hoenheim, à la limite de Souffelweyersheim.
Dès l’entrée, un couloir mène vers un séjour lumineux, sublimé par un parquet moderne qui apporte immédiatement une sensation de confort.
La cuisine, non équipée, laisse libre cours à votre imagination : moderne, minimaliste ou fonctionnelle, à vous de créer l’espace qui vous ressemble. Elle s’ouvre sur une loggia fermée, idéale comme rangement supplémentaire, espace buanderie ou petit coin détente.
La chambre offre une belle superficie et une ambiance sereine, avec une vue dégagée dans un environnement très calme.
La salle de bain est simple, propre et récemment rafraîchie.
Un appartement parfait pour ceux qui recherchent la tranquillité, la luminosité et un cadre résidentiel agréable, tout en restant à deux pas de Souffelweyersheim et de toutes ses commodités.
Informations supplémentaires :
• Charges annuelles : 2476,39 €
• Nombre de lots dans la copropriété : 340 (dont 148 lots d’habitation)
•Bien soumis au statut de copropriété : Oui, sans procédure en cours.
•Prix de départ honoraires inclus à la charge de l’acquéreur : 129 500 €
•Honoraires TTC à la charge de l’acquéreur : 8500 € TTC soit 7% TTC du prix de vente hors honoraires
•Prix de départ hors honoraires : 121 000 €
Contactez-nous dès aujourd’hui pour en savoir plus et organiser une visite !
Contact: Samir BOUHAMDI EI RSAC: 952 402 949
Les informations sur les risques auxquels ce bien est exposé sont disponibles sur le site Géorisques : www.georisques.gouv.fr.
Référence annonce : 1411
Date de réalisation du diagnostic: 18/11/2025
La participation à l’appel d’offres est soumise à agrément préalable. Toutes les propositions seront transmises au vendeur, lequel restera libre dans la sélection de celle à laquelle il entend donner suite. Une proposition en ligne pendant l’appel d’offres interactif ne constitue pas une offre ferme et précise au sens de l’article 1114 du Code Civil, mais une proposition d’achat.
Ce charmant appartement de 51 m², situé en RDC surélevé, vous accueille dans un cadre paisible à Hoenheim, à la limite de Souffelweyersheim.
Dès l’entrée, un couloir mène vers un séjour lumineux, sublimé par un parquet moderne qui apporte immédiatement une sensation de confort.
La cuisine, non équipée, laisse libre cours à votre imagination : moderne, minimaliste ou fonctionnelle, à vous de créer l’espace qui vous ressemble. Elle s’ouvre sur une loggia fermée, idéale comme rangement supplémentaire, espace buanderie ou petit coin détente.
La chambre offre une belle superficie et une ambiance sereine, avec une vue dégagée dans un environnement très calme.
La salle de bain est simple, propre et récemment rafraîchie.
Un appartement parfait pour ceux qui recherchent la tranquillité, la luminosité et un cadre résidentiel agréable, tout en restant à deux pas de Souffelweyersheim et de toutes ses commodités.
Informations supplémentaires :
• Charges annuelles : 2476,39 €
• Nombre de lots dans la copropriété : 340 (dont 148 lots d’habitation)
•Bien soumis au statut de copropriété : Oui, sans procédure en cours.
•Prix de départ honoraires inclus à la charge de l’acquéreur : 129 500 €
•Honoraires TTC à la charge de l’acquéreur : 8500 € TTC soit 7% TTC du prix de vente hors honoraires
•Prix de départ hors honoraires : 121 000 €
Contactez-nous dès aujourd’hui pour en savoir plus et organiser une visite !
Contact: Samir BOUHAMDI EI RSAC: 952 402 949
Les informations sur les risques auxquels ce bien est exposé sont disponibles sur le site Géorisques : www.georisques.gouv.fr.
Référence annonce : 1411
Date de réalisation du diagnostic: 18/11/2025
Diagnostics énergétiques
Consommation énergétique (DPE)
Émissions de Gaz à effet de serre (GES)
Plus d’informations sur le bien
Pièces |
|
| Nombre de pièces | 2 |
| Chambres | 1 |
| Salle de bain | 1 |
Commodités |
|
| Cave | OUI |
| Interphone | OUI |
Energétique |
|
| Année de construction | 1997 |
Logement proche de Hœnheim (10 km)
Nous vous proposons de découvrir aussi cette sélection de logements situés à proximité de Hœnheim et qui seraient susceptibles de vous intéresser.
1 365 000 €
Quai mulhenheim • Palier privatif 225 m²…
L'adresse exclusiveRue Erwin. Dans le micro-quartier du Tivoli, cette enclave…
227 500 €
Quartier des XV – Strasbourg | Viager…
VIAGER STRASBOURGAu cœur du très prisé quartier des Quinze, réputé…
116 650 €
Appartement meublé – investissement LMNP géré
Offre dédiée à l'investissement locatif en LMNP sous bail commercial.…
330 000 €
Combles à Vendre – Quartier Petite France
Ce bien rare situé dans les combles / sur combles…
235 080 €
Appartement à Vendre – Quartier Petite France
Situé au 3ᵉ et dernier étage d'un immeuble historique, cet…