Appartement NEUF T4 au troisième étage à Pont-Aven
294 000 €
Référence : 14182
- 81 m²
- 3 630 €/m²
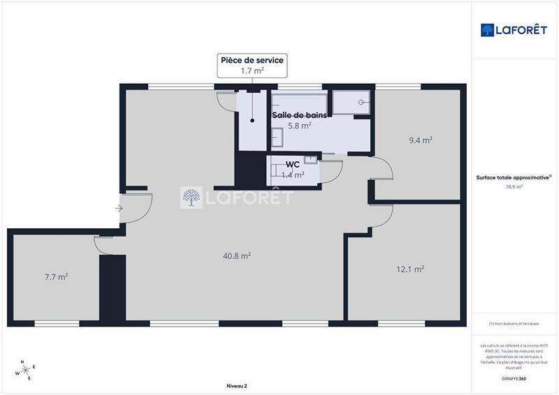
PONT-AVEN – Au sein d’une résidence entièrement réhabilitée, découvrez cet appartement T4 de 81,64m2 au troisième étage, aux volumes généreux et à la distribution fonctionnelle, offrant un excellent confort de vie.
Il se compose d’un vaste salon-séjour-cuisine de près de 34 m², lumineux grâce à ses ouvertures et son exposition, de trois chambres, d’une salle de bains avec baignoire et douche à l’italienne, d’un WC séparé, ainsi que d’un cellier apportant un espace de rangement appréciable.
L’ensemble des sols est en carrelage, garantissant durabilité et facilité d’entretien.
Une terrasse de 101m2 partagée entre 4 appartements avec une vue à 180 degrés est également à disposition.
Le bien bénéficie aussi d’une cave, idéale pour le stockage.
Le bâtiment a fait l’objet d’une rénovation complète :
-couverture
-menuiseries
-isolation
-sols et équipements
Aucun travaux à prévoir, prestations actuelles et soignées.
Stationnement et équipements :
2 places de parking privatives
Pré-équipement pour borne de recharge de véhicule électrique (installation possible)
Garage en supplément, une option rare et recherchée
Résidence sécurisée.
Environnement calme.
Copropriété rénovée et valorisée.
Un bien idéal pour une résidence principale, un investissement patrimonial, ou un projet de vie recherchant espace, luminosité et confort moderne.
Situation agréable à Pont-Aven, dans un secteur recherché.
Visite virtuelle sur demande.
Mandat 14182
Copropriété de 24 lots – dont 14 lots habitation.
Charges annuelles : 600 euros.
Grégory Janssens (EI) Agent Commercial – Numéro RSAC : – .
Les informations sur les risques auxquels ce bien est exposé sont disponibles sur le site Géorisques : www. georisques. gouv. fr
Il se compose d’un vaste salon-séjour-cuisine de près de 34 m², lumineux grâce à ses ouvertures et son exposition, de trois chambres, d’une salle de bains avec baignoire et douche à l’italienne, d’un WC séparé, ainsi que d’un cellier apportant un espace de rangement appréciable.
L’ensemble des sols est en carrelage, garantissant durabilité et facilité d’entretien.
Une terrasse de 101m2 partagée entre 4 appartements avec une vue à 180 degrés est également à disposition.
Le bien bénéficie aussi d’une cave, idéale pour le stockage.
Le bâtiment a fait l’objet d’une rénovation complète :
-couverture
-menuiseries
-isolation
-sols et équipements
Aucun travaux à prévoir, prestations actuelles et soignées.
Stationnement et équipements :
2 places de parking privatives
Pré-équipement pour borne de recharge de véhicule électrique (installation possible)
Garage en supplément, une option rare et recherchée
Résidence sécurisée.
Environnement calme.
Copropriété rénovée et valorisée.
Un bien idéal pour une résidence principale, un investissement patrimonial, ou un projet de vie recherchant espace, luminosité et confort moderne.
Situation agréable à Pont-Aven, dans un secteur recherché.
Visite virtuelle sur demande.
Mandat 14182
Copropriété de 24 lots – dont 14 lots habitation.
Charges annuelles : 600 euros.
Grégory Janssens (EI) Agent Commercial – Numéro RSAC : – .
Les informations sur les risques auxquels ce bien est exposé sont disponibles sur le site Géorisques : www. georisques. gouv. fr
Diagnostics énergétiques
Consommation énergétique (DPE)
Émissions de Gaz à effet de serre (GES)
Plus d’informations sur le bien
Pièces |
|
| Nombre de pièces | 4 |
| Chambres | 3 |
| Salle de bain | 1 |
Commodités |
|
| Étage | 3 |
| Nombre d'étage | 4 |
| Cave | OUI |
| Interphone | OUI |
Extérieur |
|
| Terrasse | OUI |
Energétique |
|
| Etat intérieur | Très bon |
| Année de construction | 1967 |
Logement proche de Pont-Aven (10 km)
Nous vous proposons de découvrir aussi cette sélection de logements situés à proximité de Pont-Aven et qui seraient susceptibles de vous intéresser.
252 000 €
Appartement NEUF T3 PMR en rez-de-chaussée Bien…
PONT-AVEN – Situé en rez-de-chaussée d'une résidence entièrement refaite à…
273 000 €
Appartement NEUF T4 au dernier étage à…
PONT-AVEN – Au sein d'une résidence entièrement réhabilitée, découvrez cet…
294 000 €
Appartement NEUF T4 au troisième étage à…
PONT-AVEN – Au sein d'une résidence entièrement réhabilitée, découvrez cet…
262 500 €
Appartement NEUF T3 au Rez-de-chaussée à Pont-Aven
PONT-AVEN – Au sein d'une résidence entièrement réhabilitée, découvrez cet…
294 000 €
Appartement NEUF T4 au deuxième étage à…
PONT-AVEN – Au sein d'une résidence entièrement réhabilitée, découvrez cet…
294 000 €
Appartement NEUF T4 au 1er étage à…
Au sein d'une résidence entièrement réhabilitée, découvrez cet appartement T4…