P2 CENTRE VILLE NIMES
147 000 €
Référence : 2041
- 50 m²
- 2 940 €/m²
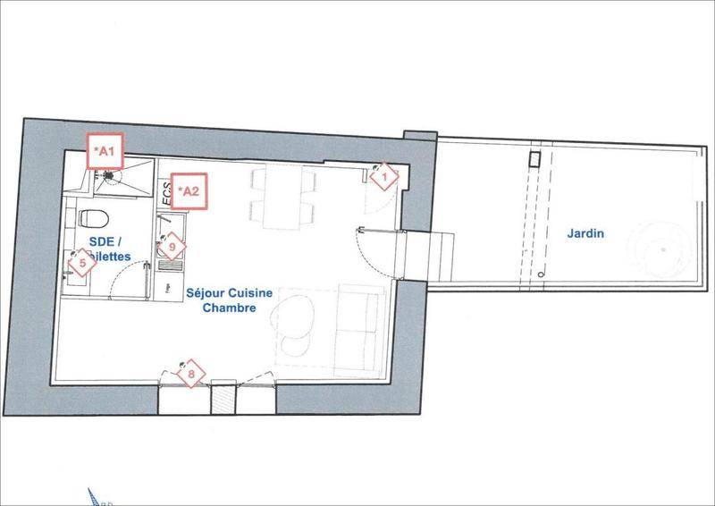
RATTO NICOLAS AGENCE REGARD VOUS PROPOSE UN APPARTEMENT 2 PIÈCES AVEC BALCON DANS UN QUARTIER RECHERCHE DE NIMES Situé au premier étage d’un immeuble calme, son intérieur, d’une surface de 51m², offre une belle chambre et un grand séjour lumineux avec cuisine ouverte. Idéal pour se prélasser au soleil ou avoir un peu d’air frais, l’appartement possède un joli balcon donnant sur une cours intérieure sans vis à vis. Il y a des écoles de tous types à moins de 10 minutes à pied, tout comme deux structures d’accueil pour la petite enfance. Niveau transports, on trouve trois gares (Nîmes, Saint-Césaire et Milhaud) à moins de 10 minutes en voiture. Les autoroutes A54 et A9, les nationales N106 et N113 et l’aéroport Nîmes-Garons sont accessibles à moins de 10 km. Pour vos loisirs, vous pourrez compter sur le cinéma Le Semaphore de même que sur un bassin de natation et un conservatoire à moins de 10 minutes à pied. Il y a également des restaurants, des boulangeries, des commerces, des supermarchés, des épiceries et trois bureaux de poste. N’hésitez pas à prendre contact avec votre agence immobilière KW REGARD pour une première visite de cet appartement à vendre.
Diagnostics énergétiques
Consommation énergétique (DPE)
Émissions de Gaz à effet de serre (GES)
Plus d’informations sur le bien
Pièces |
|
Nombre de pièces | 2 |
Chambres | 1 |
Commodités |
|
Étage | 1 |
Logement proche de Nîmes (10 km)
Nous vous proposons de découvrir aussi cette sélection de logements situés à proximité de Nîmes et qui seraient susceptibles de vous intéresser.

44 000 €
STUDIO DE 27 M2 AVEC PLACE DE…
FANNY TAILLEFER DE L'AGENCE REGARD VOUS PROPOSE EN EXCLUSIVITE CE…

249 894 €
APPARTEMENT P3 STANDING DE 75M2 CENTRE VILLE…
JULIEN BEAUMONT DE L'AGENCE REGARD VOUS PROPOSE À LA VENTE…

242 444 €
APPARTEMENT P3 STANDING DE 75M2 CENTRE VILLE…
JULIEN BEAUMONT DE L'AGENCE REGARD VOUS PROPOSE À LA VENTE…

182 671 €
APPARTEMENT P3 STANDING 57M2 CENTRE VILLE NIMES
JULIEN BEAUMONT DE L'AGENCE REGARD VOUS PROPOSE À LA VENTE…

1 150 000 €
MAISON 357 M2 AVEC ANNEXES DOUBLE GARAGE…
JULIEN BEAUMONT DE L'AGENCE REGARD VOUS PROPOSE CETTE VILLA NICHÉE…

449 000 €
MAISON MODERNE AVEC PISCINE CROIX DE FER
L 'AGENCE REGARD VOUS PROPOSE EN EXCLUSIVITÉ CETTE BELLE MAISON…