Appartement 3 pièces Double Exposition – Loggia – Parking

481 000 €
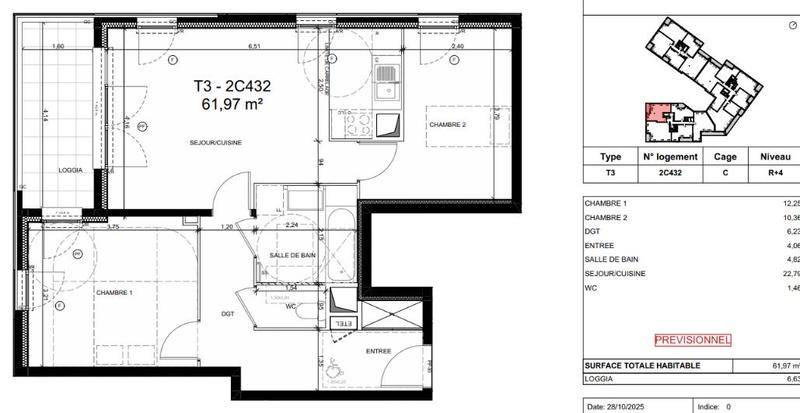
Référence : 6278
  • 62 m²
  • 7 758 €/m²
Appartement 3 pièces Double Exposition – Loggia – Parking en sous-sol

Situé au 4e étage d’une résidence de standing, ce bel appartement de 62 m² bénéficie d’une double exposition SO et NO, assurant une luminosité optimale tout au long de la journée. Il se compose d’une entrée desservant un vaste séjour avec cuisine ouverte, prolongé par une agréable loggia de presque 7m² m² orienté sud ouest. Deux chambres confortables dont une donnant sur la loggia, une salle de bain équipée et des WC séparés. Un emplacement de stationnement privatif et sécurisé en sous-sol (en supplément, obligatoire) vient compléter ce bien, idéal pour les amateurs de confort et de modernité.

La résidence :
Résidence à l’architecture contemporaine
Conforme à la réglementation environnementale RE 2020
Accessibilité PMR
Isolation thermique et phonique renforcée
Faibles charges de copropriété

A 3 min du métro
Cadre de vie familial et pratique : marchés, équipements sportifs et culturels.

Prix et conditions :
498 000 euros TTC parking inclus
Prix hors parking : 481 000 euros TTC
Prix place de parking : 17 000 euros TTC

Accompagnement complet jusqu’à la remise des clefs
Un expert dédié pour votre résidence principale ou votre investissement locatif
Contact dédié : Gabriel de Araujo
*sous conditions d’éligibilité à découvrir auprès de votre conseiller
** dans la limite des stocks disponibles, photos non contractuelles

Diagnostics énergétiques

Consommation énergétique (DPE)

Information sur la consommation énergétique non disponible.

Émissions de Gaz à effet de serre (GES)

Information sur les émissions de gaz à effet de serre non disponible.

Plus d’informations sur le bien

Pièces

Nombre de pièces 3
Chambres 2
Salle de bain 1

Commodités

Étage 4
Ascenseur OUI

CONTACTER

+ Modifier le message

Logement proche de Clichy (10 km)

Nous vous proposons de découvrir aussi cette sélection de logements situés à proximité de Clichy et qui seraient susceptibles de vous intéresser.

Image de l'annonce Appartement 5 pièces Double Exposition traversant -…
748 000 €

Appartement 5 pièces Double Exposition traversant -…

Situé au 5e étage d'une résidence de standing, ce bel…

  • 99 m²
  • 7 556 €/m²
Image de l'annonce COURBEVOIE BECON - 3 PIECES 55 M²…
377 000 €

COURBEVOIE BECON – 3 PIECES 55 M²…

En plein coeur de Bécon (gare commerces et écoles à…

  • 55 m²
  • 6 855 €/m²
Image de l'annonce Appartement 3 pièces Double Exposition - Loggia…
481 000 €

Appartement 3 pièces Double Exposition – Loggia…

Appartement 3 pièces Double Exposition – Loggia – Parking en…

  • 62 m²
  • 7 758 €/m²
Image de l'annonce Appartement 2 pièces - 6ème étage -…
384 000 €

Appartement 2 pièces – 6ème étage -…

OPPORTUNITE EXCEPTIONNELLE – 2 PIECES AVEC TERRASSE – CLICHY (92)Imax…

  • 45 m²
  • 8 533 €/m²
Image de l'annonce Grand Studio avec parking en sous sol
165 455 €

Grand Studio avec parking en sous sol

Nous vous proposons un studio au premier étage avec ascenseur…

  • 30 m²
  • 5 515 €/m²
Image de l'annonce 2 PIECES AVEC JARDIN
243 636 €

2 PIECES AVEC JARDIN

Nous vous proposons un 2 pièces en rez-de-jardin comprenant un…

  • 47 m²
  • 5 184 €/m²
Image de l'annonce COURBEVOIE BECON - MAISON 3 PIECES 70…
620 000 €

COURBEVOIE BECON – MAISON 3 PIECES 70…

Entre la gare d'Asnières et le pont de Levallois (métro…

  • 70 m²
  • 8 857 €/m²
Image de l'annonce Appartement 2 pièces 39.65 m2
121 400 €

Appartement 2 pièces 39.65 m2

Seqens (Lot 355568) vous ouvre les portes d'une opportunité rare…

  • 39 m²
  • 3 113 €/m²
Image de l'annonce LOT 04 - 4 PIECES + TERRASSE…
710 000 €

LOT 04 – 4 PIECES + TERRASSE…

SURESNES – LES VOILES -Une mini-résidence composée de 9 appartements…

  • 83 m²
  • 8 554 €/m²
Image de l'annonce Local Commercial ou Grand Studio - 37,70…
225 000 €

Local Commercial ou Grand Studio – 37,70…

Petite résidence composée de seulement 10 logements, ce grand studio…

  • 37 m²
  • 6 081 €/m²

L’actualité immobilière à Clichy