A Bouguenais, maison 4 pièces de plain pied avec jardin et garage

248 000 €
Référence : IRVM16037344340
  • 73 m²
  • 3 397 €/m²
Bienvenue chez Abriculteurs, l’agence familiale qui s’engage à un service immobilier d’exception. Découvrez une présentation soignée de ce bien : des photos professionnelles, un plan détaillé et une visite virtuelle immersive pour vous projeter dans un cadre unique. Faites confiance à notre expertise pour transformer vos projets immobiliers en réussites remarquables.
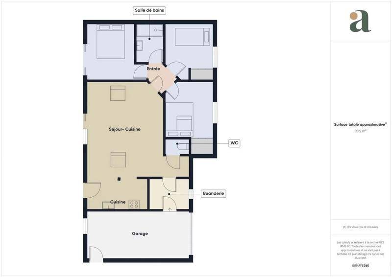
A Bouguenais, au calme de son impasse, une maison de plain pied de 2006 , comprenant 3 Chambres dont deux avec placards, une salle de bain, un wc, un large séjour, une cuisine semi ouverte aménagée, une buanderie et un grand garage . Possibilités d’agrandir la maison .
Sur un terrain de 557 m2 , offrant un un jardin clos et une terrasse .
Tout électrique, bons radiateurs et eau chaude individuelle par ballon .
Vmc, doubles vitrages, toiture en très bon état .
Au sein d’une petite copropriété, qui permet de bénéficier d’espaces verts et d’un parking visiteurs quand on reçoit .
Pas très loin de la zone commerciale d’Atout sud, de Trentemoult, direct par le bus 36 , secteur rue de la Paix .
Un très bon compromis entre ville et campagne

Consommation conventionnelle (kWhEP/m2.an) : 173 (C)
Estimation des émissions (kg CO2/m2.an) : 5 (C)

Prix de vente : 248 000 € (Honoraires agence à la charge du vendeur)

Les informations sur les risques auxquels ce bien est exposé sont disponibles sur le
site Géorisques : www.georisques.gouv.fr

La présente annonce immobilière a été rédigée sous la responsabilité éditoriale de Madame Isabelle RAULT, EI, Agent Commercial mandataire en immobilier immatriculé au Registre Spécial des Agents Commerciaux du Tribunal de Commerce de Nantes, numéro 480282060

SAS Abriculteurs immobilier au capital de 5 000,00 € immatriculée sous le numéro de SIREN 837704584 dont le représentant légal est Monsieur Adrien PIOT.
Les informations sur les risques auxquels ce bien est exposé sont disponibles sur le site www.georisques.gouv.fr

Diagnostics énergétiques

Consommation énergétique (DPE)

ABCDEFG

Émissions de Gaz à effet de serre (GES)

ABCDEFG

Plus d’informations sur le bien

Pièces

Nombre de pièces 4
Chambres 3
Salle de bain 1

Energétique

Année de construction 2006

CONTACTER

+ Modifier le message

Logement proche de Bouguenais (10 km)

Nous vous proposons de découvrir aussi cette sélection de logements situés à proximité de Bouguenais et qui seraient susceptibles de vous intéresser.

Image de l'annonce Plateau de 4 studios - Spécial investisseur
445 400 €

Plateau de 4 studios – Spécial investisseur

Partenaire de votre vie immobilière depuis 2016, homeloop vous propose…

  • 114 m²
  • 3 907 €/m²
Image de l'annonce A Pont St Martin , Grand appartement…
208 000 €

A Pont St Martin , Grand appartement…

Bienvenue chez Abriculteurs, l'agence familiale qui s'engage à un service…

  • 105 m²
  • 1 981 €/m²
Image de l'annonce Appartement T4 de 93 m² - Calvaire…
312 000 €

Appartement T4 de 93 m² – Calvaire…

Partenaire de votre vie immobilière depuis 2016, homeloop vous propose…

  • 93 m²
  • 3 355 €/m²
Image de l'annonce Maison 4 pièces 52 m2
265 674 €

Maison 4 pièces 52 m2

Maison neuve à construire IRIS_PATRIMOINE_2CH_52_V1 BELLE MAISON DE 2 CHAMBRES…

  • 52 m²
  • 5 109 €/m²
Image de l'annonce Maison 6 pièces 111 m2
287 364 €

Maison 6 pièces 111 m2

Maison neuve à construire FRENE_4CH_111_V1 BELLE MAISON DE 4 CHAMBRES…

  • 111 m²
  • 2 589 €/m²
Image de l'annonce A Bouguenais, maison 4 pièces de plain…
248 000 €

A Bouguenais, maison 4 pièces de plain…

Bienvenue chez Abriculteurs, l'agence familiale qui s'engage à un service…

  • 73 m²
  • 3 397 €/m²
Image de l'annonce Bel appartement de 80m2 - 3ème étage…
285 000 €

Bel appartement de 80m2 – 3ème étage…

Bienvenue chez Abriculteurs. Vous trouverez ici toutes les informations clés,…

  • 79 m²
  • 3 608 €/m²
Image de l'annonce Grande maison - Avenue Privée - 5…
794 200 €

Grande maison – Avenue Privée – 5…

Maison familiale de 240m2 au cœur des Hauts-PavésLa maison mesure…

  • 240 m²
  • 3 309 €/m²
Image de l'annonce Maison moderne 3 chambres - Environnement calme…
285 000 €

Maison moderne 3 chambres – Environnement calme…

Bienvenue chez Abriculteurs, l'agence familiale qui s'engage à un service…

  • 81 m²
  • 3 519 €/m²
Image de l'annonce A Nantes , Maison familiale 5 chambres…
389 000 €

A Nantes , Maison familiale 5 chambres…

Bienvenue chez Abriculteurs, l'agence familiale qui s'engage à un service…

  • 110 m²
  • 3 536 €/m²

L’actualité immobilière à Bouguenais