APPARTEMENT – REIMS – ER.16212

197 000 €
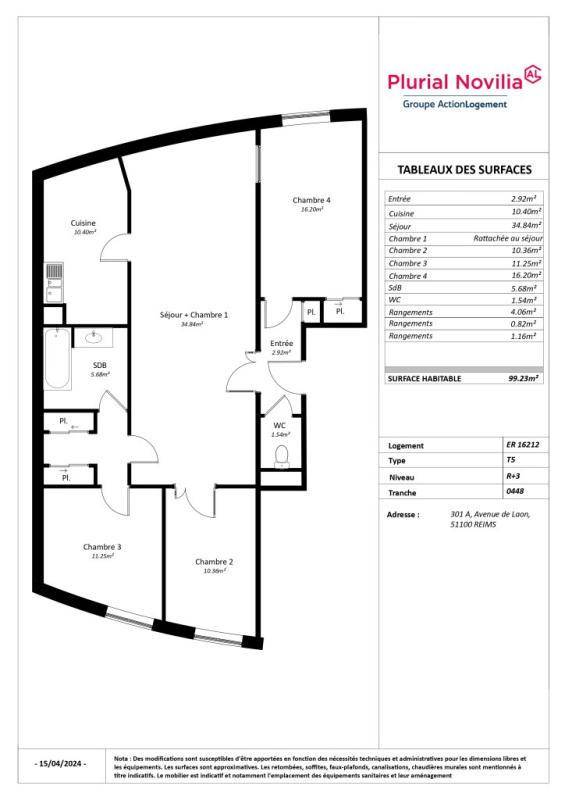
Référence : ER.16212
  • 99 m²
  • 1 990 €/m²
Appartement situé 301A avenue de Laon a Reims, appartement T5 de 97,89m2 Carrez situé au 3eme étage et comprenant : entrée avec placard, cuisine, salon- séjour, salle de bain, WC, 3 chambres – Box en sous-sol – Chauffage Individuel – DPE : D – Charges : 103 euros/mois (1 240 euros/an) env – Fonds travaux : euros/mois (60 euros/an) env – Taxe Foncière 2024 : 1450 euros environ box inclus. Montant estimé des dépenses annuelles d’énergie pour un usage standard : entre 1300 E et 1810 E par an. Prix moyens des énergies indexés sur l’année 2023 (abonnements compris).Vente ouverte à titre de résidence principale. Visites sur RDV, renseignements et dépôt des dossiers complets en contactant le commercialisateur. Délais de remise des offres prioritaires : 1 mois à compter de la dernière annonce légale. Remise des offres : par mail. Offre et prix soumis à condition de ressources. Les délais de remise de offres, priorités des candidatures, le prix et les conditions de ressources relèvent de de l’article L443-11 et suivants du CCH. Frais de notaire réduits et pas de frais de notaire pour les cataires PLURIAL NOVILIA.

Diagnostics énergétiques

Consommation énergétique (DPE)

ABCDEFG

Émissions de Gaz à effet de serre (GES)

ABCDEFG

Plus d’informations sur le bien

Pièces

Nombre de pièces 5
Chambres 3
Salle de bain 1

Commodités

Étage 3
Ascenseur OUI

Energétique

Année de construction 1992

CONTACTER

+ Modifier le message

Logement proche de Reims (10 km)

Nous vous proposons de découvrir aussi cette sélection de logements situés à proximité de Reims et qui seraient susceptibles de vous intéresser.

Image de l'annonce APPARTEMENT - REIMS - ER.16212
197 000 €

APPARTEMENT – REIMS – ER.16212

Appartement situé 301A avenue de Laon a Reims, appartement T5…

  • 99 m²
  • 1 990 €/m²
Image de l'annonce APPARTEMENT - REIMS - ER.16212
197 000 €

APPARTEMENT – REIMS – ER.16212

Appartement situé 301A avenue de Laon a Reims, appartement T5…

  • 99 m²
  • 1 990 €/m²
Image de l'annonce A VENDRE - T1 BIS SECTEUR CARTERET
77 500 €

A VENDRE – T1 BIS SECTEUR CARTERET

Venez découvrir ce charmant T1 bis situé au 1er étage…

  • 26 m²
  • 2 981 €/m²
Image de l'annonce APPARTEMENT - REIMS - ER.17291
133 500 €

APPARTEMENT – REIMS – ER.17291

À Reims, au 6 rue Arlette Rémia, découvrez cet appartement…

  • 57 m²
  • 2 342 €/m²
Image de l'annonce APPARTEMENT - REIMS - ER.17291
133 500 €

APPARTEMENT – REIMS – ER.17291

À Reims, au 6 rue Arlette Rémia, découvrez cet appartement…

  • 57 m²
  • 2 342 €/m²
Image de l'annonce APPARTEMENT - REIMS - ER.10983
151 000 €

APPARTEMENT – REIMS – ER.10983

9 rue Tournebonneau à Reims, appartement T3 situé au 5ème…

  • 71 m²
  • 2 127 €/m²
Image de l'annonce APPARTEMENT - REIMS - ER.10983
151 000 €

APPARTEMENT – REIMS – ER.10983

9 rue Tournebonneau à Reims, appartement T3 situé au 5ème…

  • 71 m²
  • 2 127 €/m²
Image de l'annonce APPARTEMENT - REIMS - ER.08907
96 500 €

APPARTEMENT – REIMS – ER.08907

Au 134 rue Pierre Brossolette à Reims, appartement T2 de…

  • 50 m²
  • 1 930 €/m²
Image de l'annonce APPARTEMENT - REIMS - ER.08907
96 500 €

APPARTEMENT – REIMS – ER.08907

Au 134 rue Pierre Brossolette à Reims, appartement T2 de…

  • 50 m²
  • 1 930 €/m²

L’actualité immobilière à Reims