Appartement familial de caractère – 129,86 m² – 5 pièces – Paris 10ème
1 234 998 €
Référence : IFVA120313075010
- 129 m²
- 9 574 €/m²
Bienvenue chez Abriculteurs, l’agence familiale qui s’engage à un service immobilier d’exception.
Découvrez une présentation soignée de ce bien : des photos professionnelles, un plan détaillé et une visite virtuelle immersive.
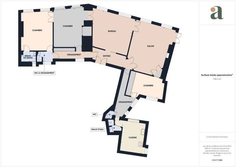
Découvrez cet appartement familial de 5 pièces, d’une superficie généreuse de 129,86 m², situé au 3ème étage avec ascenseur d’un bel immeuble ancien, au cœur du 10ème arrondissement de Paris.
Bénéficiant d’un emplacement central et vivant, au pied de la Porte Saint-Denis et de la Porte Saint-Martin, il offre un cadre de vie dynamique, à proximité immédiat des commerces, théâtres et transports en commun.
L’appartement s’ouvre sur un grand bureau (pouvant être transformé en pièce de vie)et sur une majestueuse pièce de réception de style classique, sublimée par ses moulures, ses dorures, ses hauts plafonds, un parquet en point de Hongrie.
Une élégante cheminée ajoute une touche chaleureuse à cet espace convivial, idéal pour recevoir famille et amis.
Un premier couloir mène à deux grandes chambres lumineuses sur rue, une salle de bains et un espace toilettes. Ces quatre pièces principales sont communicantes et orientées plein sud.
Un second couloir mène à une troisième chambre, une cuisine indépendante équipée, une salle d’eau, ainsi que des toilettes séparées.
Avec ses volumes, son agencement et sa localisation stratégique, cet appartement présente un fort potentiel après rénovation et se prête parfaitement à un usage mixte, combinant habitation et activité de profession libérales.
Une cave d’environ 3m2 complète ce bien qui dispose également de nombreux rangements.
Les + du bien :
– Emplacement recherché au coeur de l’animation
– Immeuble du XIXe siècle avec ascenseur et gardienne
– Cachet préservé : parquet point de Hongrie, moulure, cheminée et décor d’origine
– Modularité : Beaux volumes offrant un fort potentiel après rénovation.
A noter :
– Taxes foncières : 1 946 €
– Charges de copropriété : 5 591 € / an (eau, ascenseur, gardienne, entretien des parties communes)
– État du bien : Travaux à prévoir
– Le bien est soumis au statut de copropriété : 33 lots dont 12 lots d’habitation
– Appartement lot n°26 ; Cave Lot n°15
– Pas de procédure en cours
Consommation conventionnelle (kWhEP/m2.an) : 256 (E)
Estimation des émissions (kg CO2/m2.an) : 51 (E)
Prix de vente : 1 234 998 € (Honoraires agence à la charge du vendeur)
Les informations sur les risques auxquels ce bien est exposé sont disponibles sur le site Géorisques : : www.georisques.gouv.fr
Annonce rédigée sous la responsabilité éditoriale de Mme Isabelle BRUT-FRANCIS , agent commercial (EI), immatriculé au RSAC de Nanterre sous le n° 903 553 295, sans détention de fonds, agissant pour le compte de la SARL Abriculteurs immobilier, au capital de 5 000 €, immatriculée sous le SIREN n° 837 704 584, titulaire de la carte professionnelle n° CPI 7501 2018 000 025 842 délivrée par la CCI de Paris Île-de-France, dont le représentant légal est M. Adrien Piot, ayant son siège social au 12 rue des Halles, 75001 Paris.
Les informations sur les risques auxquels ce bien est exposé sont disponibles sur le site www.georisques.gouv.fr
Découvrez une présentation soignée de ce bien : des photos professionnelles, un plan détaillé et une visite virtuelle immersive.
Découvrez cet appartement familial de 5 pièces, d’une superficie généreuse de 129,86 m², situé au 3ème étage avec ascenseur d’un bel immeuble ancien, au cœur du 10ème arrondissement de Paris.
Bénéficiant d’un emplacement central et vivant, au pied de la Porte Saint-Denis et de la Porte Saint-Martin, il offre un cadre de vie dynamique, à proximité immédiat des commerces, théâtres et transports en commun.
L’appartement s’ouvre sur un grand bureau (pouvant être transformé en pièce de vie)et sur une majestueuse pièce de réception de style classique, sublimée par ses moulures, ses dorures, ses hauts plafonds, un parquet en point de Hongrie.
Une élégante cheminée ajoute une touche chaleureuse à cet espace convivial, idéal pour recevoir famille et amis.
Un premier couloir mène à deux grandes chambres lumineuses sur rue, une salle de bains et un espace toilettes. Ces quatre pièces principales sont communicantes et orientées plein sud.
Un second couloir mène à une troisième chambre, une cuisine indépendante équipée, une salle d’eau, ainsi que des toilettes séparées.
Avec ses volumes, son agencement et sa localisation stratégique, cet appartement présente un fort potentiel après rénovation et se prête parfaitement à un usage mixte, combinant habitation et activité de profession libérales.
Une cave d’environ 3m2 complète ce bien qui dispose également de nombreux rangements.
Les + du bien :
– Emplacement recherché au coeur de l’animation
– Immeuble du XIXe siècle avec ascenseur et gardienne
– Cachet préservé : parquet point de Hongrie, moulure, cheminée et décor d’origine
– Modularité : Beaux volumes offrant un fort potentiel après rénovation.
A noter :
– Taxes foncières : 1 946 €
– Charges de copropriété : 5 591 € / an (eau, ascenseur, gardienne, entretien des parties communes)
– État du bien : Travaux à prévoir
– Le bien est soumis au statut de copropriété : 33 lots dont 12 lots d’habitation
– Appartement lot n°26 ; Cave Lot n°15
– Pas de procédure en cours
Consommation conventionnelle (kWhEP/m2.an) : 256 (E)
Estimation des émissions (kg CO2/m2.an) : 51 (E)
Prix de vente : 1 234 998 € (Honoraires agence à la charge du vendeur)
Les informations sur les risques auxquels ce bien est exposé sont disponibles sur le site Géorisques : : www.georisques.gouv.fr
Annonce rédigée sous la responsabilité éditoriale de Mme Isabelle BRUT-FRANCIS , agent commercial (EI), immatriculé au RSAC de Nanterre sous le n° 903 553 295, sans détention de fonds, agissant pour le compte de la SARL Abriculteurs immobilier, au capital de 5 000 €, immatriculée sous le SIREN n° 837 704 584, titulaire de la carte professionnelle n° CPI 7501 2018 000 025 842 délivrée par la CCI de Paris Île-de-France, dont le représentant légal est M. Adrien Piot, ayant son siège social au 12 rue des Halles, 75001 Paris.
Les informations sur les risques auxquels ce bien est exposé sont disponibles sur le site www.georisques.gouv.fr
Diagnostics énergétiques
Consommation énergétique (DPE)
Émissions de Gaz à effet de serre (GES)
Plus d’informations sur le bien
Pièces |
|
| Nombre de pièces | 5 |
| Chambres | 3 |
| Salle de bain | 1 |
Commodités |
|
| Étage | 3 |
| Nombre d'étage | 1 |
| Ascenseur | OUI |
| Cave | OUI |
Energétique |
|
| Année de construction | 1830 |
Logement proche de Paris 10 (10 km)
Nous vous proposons de découvrir aussi cette sélection de logements situés à proximité de Paris 10 et qui seraient susceptibles de vous intéresser.
810 000 €
Charmant appartement traversant de 68 m² au…
Bienvenue chez Abriculteurs, l'agence familiale qui s'engage à un service…
950 000 €
PARIS 1 – PALAIS ROYAL – MAGNIFIQUE…
PARIS 1er – PALAIS ROYAL – MAGNIFIQUE 2/3 PIECES REFAIT…
318 000 €
PARIS 1 – PALAIS ROYAL – BEAU…
PARIS 1er – PALAIS ROYAL – BEAU STUDIO PARFAITEMENT RENOVESitué…
790 €
Studio 10 m² Paris 2ᵉ – rue…
Studio 10 m²Paris 2ᵉ – rue Mandar- quartier Montorgueil–Saint-DenisJe propose…
1 234 998 €
Appartement familial de caractère – 129,86 m²…
Bienvenue chez Abriculteurs, l'agence familiale qui s'engage à un service…
1 490 €
Appartement 2 pièces 48 m² 17ᵉ arrondissement…
Appartement 2 pièces48 m²17ᵉ arrondissementRue de TocquevilleLoyer : 1490 €…
1 200 000 €
OFF-MARKET -LES LILAS- MAISON D’ARCHITECTE, JARDIN, ROOFTOP
OFF-MARKET – LES LILAS – Coup de cœur – Maison…