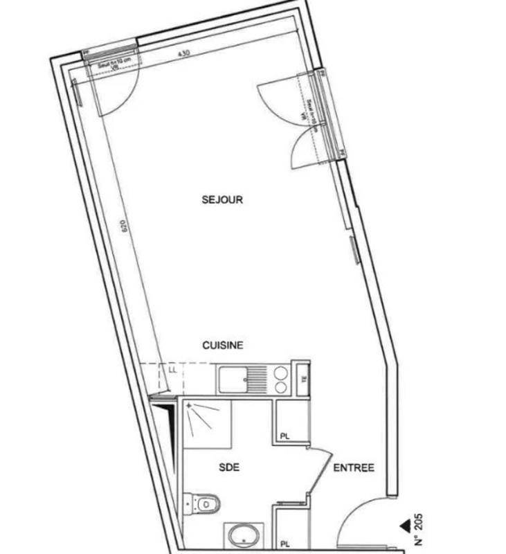
Grand studio de 39,52 m² Carrez – Quartier Pyrénées

335 000 €
Référence : 7376927
  • 40 m²
  • 8 375 €/m²
À deux pas de la rue des Pyrénées, des commerces, des transports et de la Promenade Plantée, ce grand studio bénéficie d’un cadre de vie idéal, dans un quartier vivant et recherché.

Situé au 2ᵉ étage avec ascenseur d’une copropriété récente et bien entretenue, il offre une pièce principale lumineuse avec deux fenêtres double exposition, une cuisine américaine entièrement aménagée, ainsi qu’une salle d’eau moderne avec douche à l’italienne et WC.

Calme et agréable, l’appartement donne sur un espace de verdure.

Les atouts :

accessibilité PMR,
garage à vélos,
rooftop partagé.
Chauffage collectif.

Surface : 39,52 m² Carrez
DPE : C – GES : C
Taxe foncière : 888 €

Contactez moi pour plus d’informations ou pour une visite

Agnès LEBAZ (Numéro supprimé)
(Email supprimé)

Agnès LEBAZ (EI) Agent Commercial – Numéro RSAC : 900 240 128 – PARIS

Diagnostics énergétiques

Consommation énergétique (DPE)

ABCDEFG

Émissions de Gaz à effet de serre (GES)

Information sur les émissions de gaz à effet de serre non disponible.

Plus d’informations sur le bien

Pièces

Nombre de pièces 1
Salle de bain 1

Energétique

Année de construction 2011

CONTACTER

+ Modifier le message

Logement proche de Paris 20 (10 km)

Nous vous proposons de découvrir aussi cette sélection de logements situés à proximité de Paris 20 et qui seraient susceptibles de vous intéresser.

Image de l'annonce T4 - Lot 142 / River Seine…
698 775 €

T4 – Lot 142 / River Seine…

Dans l'ensemble immobilier en copropriété River Seine, situé à Levallois-Perret…

  • 88 m²
  • 7 941 €/m²
Image de l'annonce Studio A51 avec parking / River Seine…
277 720 €

Studio A51 avec parking / River Seine…

Dans un ensemble immobilier en copropriété, IT FLAT vous propose…

  • 32 m²
  • 8 679 €/m²
Image de l'annonce LES TERRASSES GALLIENI
267 000 €

LES TERRASSES GALLIENI

TRAVAUX EN COURS ! Au sein de la Plaine de…

  • 44.24 m²
  • 6 035 €/m²
Image de l'annonce PARIS 16 - RUE DE LA TOUR…
475 000 €

PARIS 16 – RUE DE LA TOUR…

PARIS 16 – RUE DE LA TOUR – DUPLEX COMME…

  • 41 m²
  • 11 585 €/m²
Image de l'annonce Studio résidence étudiante
180 000 €

Studio résidence étudiante

Investissez dans un studio confortable dans une résidence étudiante :Un…

  • 25 m²
  • 7 200 €/m²
Image de l'annonce Dernier étage Asnières
489 000 €

Dernier étage Asnières

Partenaire de votre vie immobilière depuis 2016, homeloop vous présente…

  • 65 m²
  • 7 523 €/m²
Image de l'annonce A vendre - appartement style loft, 3…
800 000 €

A vendre – appartement style loft, 3…

Vous serez immédiatement charmé par sa belle pièce de vie…

  • 74 m²
  • 10 811 €/m²
Image de l'annonce Studio résidence étudiante
143 576 €

Studio résidence étudiante

Investissez dans un studio bénéficiant d'un locataire.Des revenus sécurisés par…

  • 18 m²
  • 7 976 €/m²
Image de l'annonce SO HERITAGE
442 000 €

SO HERITAGE

Rares: appartements neufs avec magnifiques vues imprenables dans un nouveau…

  • 72.1 m²
  • 6 130 €/m²
Image de l'annonce Paris 8ème - STUDETTE RÉNOVÉE – MADELEINE…
139 300 €

Paris 8ème – STUDETTE RÉNOVÉE – MADELEINE…

Paris 8ème – STUDETTE RÉNOVÉE – MADELEINE / SAINT-AUGUSTINAu 5ème…

  • 12 m²
  • 11 608 €/m²

L’actualité immobilière à Paris 20