Construction Aubigny en Artois
252 000 €
Référence : Pavillon_Aubigny
- 105 m²
- 2 400 €/m²
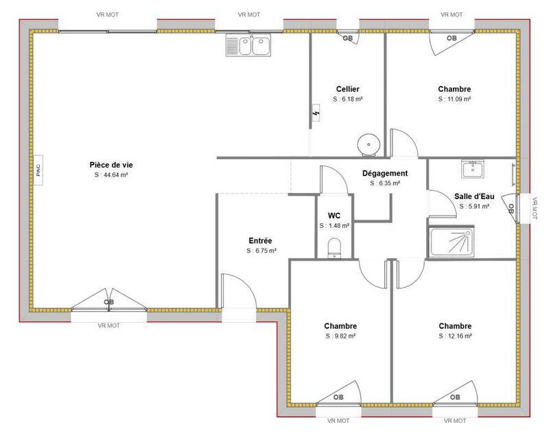
Nous vous proposons ce projet de Maison individuelle de plein pied avec 3 chambres sur un très beau terrain constructible à Aubigny en Artois.
Ce terrain à Aubigny en Artois en quartier résidentiel est situé à proximité des commerces, médecins et écoles.
Vous disposerez d’une grande pièce de vie lumineuse d’une cuisine ouverte ainsi qu’un cellier. Une grande baie vitrée donnant sur votre jardin.
En partie nuit : 3 belles chambres, une salle de bain et un WC séparé.
Cette maison est une proposition imaginée par Maisons Home Ready, votre constructeur de maisons à Auchy-les-Mines.
Possibilité de réaliser votre maison personnalisée sur les secteurs de votre choix afin de s’adapter au mieux à votre budget.
MENTIONS LEGALES : Le modèle est totalement adaptable à vos envies et besoins et personnalisable grâce à de nombreuses options de finition. Nous consulter pour plus d’informations. Le prix affiché comprend le coût du terrain et de la construction (frais de notaire et taxes inclus). Les annonces de terrains constructibles sont sélectionnées auprès de nos partenaires fonciers selon disponibilités et autorisation de publicité en vue de construire une maison neuve avec un Contrat de Construction de Maison Individuelle dans le cadre de la loi du 19/12/1990. Ces derniers sont soit des professionnels dûment habilités à la transaction immobilière, soit des particuliers. Les terrains sélectionnés sont disponibles à la date de la première parution de l’annonce. En aucun cas Maisons Home Ready ou ses collaborateurs ne sont propriétaires des terrains, ne jouent un rôle d’intermédiation ou de négociation sur la transaction et ne participent à la vente. Les prix des terrains sont indiqués par nos partenaires fonciers.
Soumis au DPE
Conforme à la réglementation thermique en vigueur RE2020
Ce terrain à Aubigny en Artois en quartier résidentiel est situé à proximité des commerces, médecins et écoles.
Vous disposerez d’une grande pièce de vie lumineuse d’une cuisine ouverte ainsi qu’un cellier. Une grande baie vitrée donnant sur votre jardin.
En partie nuit : 3 belles chambres, une salle de bain et un WC séparé.
Cette maison est une proposition imaginée par Maisons Home Ready, votre constructeur de maisons à Auchy-les-Mines.
Possibilité de réaliser votre maison personnalisée sur les secteurs de votre choix afin de s’adapter au mieux à votre budget.
MENTIONS LEGALES : Le modèle est totalement adaptable à vos envies et besoins et personnalisable grâce à de nombreuses options de finition. Nous consulter pour plus d’informations. Le prix affiché comprend le coût du terrain et de la construction (frais de notaire et taxes inclus). Les annonces de terrains constructibles sont sélectionnées auprès de nos partenaires fonciers selon disponibilités et autorisation de publicité en vue de construire une maison neuve avec un Contrat de Construction de Maison Individuelle dans le cadre de la loi du 19/12/1990. Ces derniers sont soit des professionnels dûment habilités à la transaction immobilière, soit des particuliers. Les terrains sélectionnés sont disponibles à la date de la première parution de l’annonce. En aucun cas Maisons Home Ready ou ses collaborateurs ne sont propriétaires des terrains, ne jouent un rôle d’intermédiation ou de négociation sur la transaction et ne participent à la vente. Les prix des terrains sont indiqués par nos partenaires fonciers.
Soumis au DPE
Conforme à la réglementation thermique en vigueur RE2020
Plus d’informations sur le bien
Pièces |
|
| Chambres | 3 |
| Salle de bain | 1 |
Logement proche de Aubigny-en-Artois (10 km)
Nous vous proposons de découvrir aussi cette sélection de logements situés à proximité de Aubigny-en-Artois et qui seraient susceptibles de vous intéresser.
252 000 €
Construction Aubigny en Artois
Nous vous proposons ce projet de Maison individuelle de plein…