Pavillon Montigny en Gohelle
259 000 €
Référence : Pavillon_Montigny
- 130 m²
- 1 992 €/m²
Maison neuve à construire
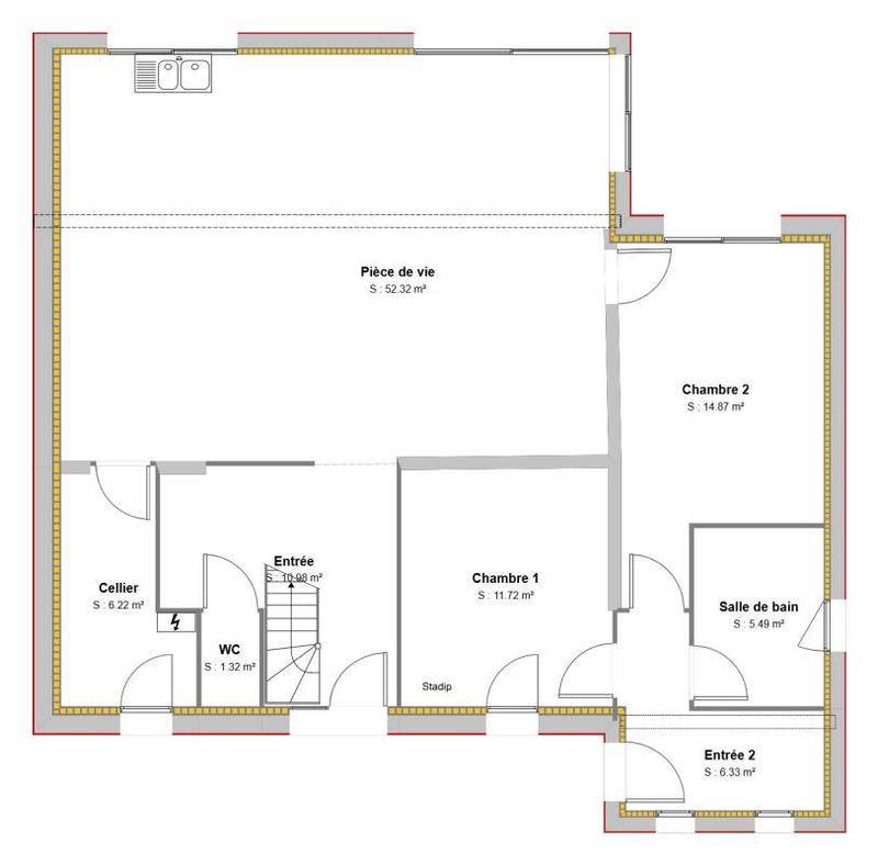
Nous vous proposons ce projet de Maison avec 5 chambres sur un très beau terrain constructible à Montigny-en Gohelle avec TVA à 5.5%. . La maison se compose de 2 entrées distinctes pouvant faire office de chambre d’hôte ou aménagement pour les « grands » enfants…
Dés l’entrée vous découvrirez un joli vide sur hall, composée d’une belle pièce de vie avec baie vitrée donnant sur le jardin ainsi qu’un cellier.
A l’étage ce sont 3 belles chambres dont une chambre parentale avec son dressing et sa salle d’eau attenante, ainsi qu’un salle de bain.
Lorsque vous achetez un terrain en TVA à 5.5 %, vous bénéficiez également d’une TVA à 5.5% sur votre construction. Vous pouvez aussi prétendre à un prêt à taux 0 bonifié dont le montant varie en fonction de la composition de votre famille auquel vous avez également la possibilité d’ajouter un prêt action logement d’un montant de 30 000€ à 1%.
Ce terrain à Montigny-en Gohelle est situé à proximité des commerces, médecins et écoles, proche des grands axes routiers.
Cette maison est une proposition imaginée par Maisons Home Ready, votre constructeur de maisons à Auchy-les-Mines.
MENTIONS LEGALES : Le modèle est totalement adaptable à vos envies et besoins et personnalisable grâce à de nombreuses options de finition. Nous consulter pour plus d’informations. Le prix affiché comprend le coût du terrain et de la construction (frais de notaire et taxes inclus). Les annonces de terrains constructibles sont sélectionnées auprès de nos partenaires fonciers selon disponibilités et autorisation de publicité en vue de construire une maison neuve avec un Contrat de Construction de Maison Individuelle dans le cadre de la loi du 19/12/1990. Ces derniers sont soit des professionnels dûment habilités à la transaction immobilière, soit des particuliers. Les terrains sélectionnés sont disponibles à la date de la première parution de l’annonce. En aucun cas Maisons Home Ready ou ses collaborateurs ne sont propriétaires des terrains, ne jouent un rôle d’intermédiation ou de négociation sur la transaction et ne participent à la vente. Les prix des terrains sont indiqués par nos partenaires fonciers.
Soumis au DPE
Nous vous proposons ce projet de Maison avec 5 chambres sur un très beau terrain constructible à Montigny-en Gohelle avec TVA à 5.5%. . La maison se compose de 2 entrées distinctes pouvant faire office de chambre d’hôte ou aménagement pour les « grands » enfants…
Dés l’entrée vous découvrirez un joli vide sur hall, composée d’une belle pièce de vie avec baie vitrée donnant sur le jardin ainsi qu’un cellier.
A l’étage ce sont 3 belles chambres dont une chambre parentale avec son dressing et sa salle d’eau attenante, ainsi qu’un salle de bain.
Lorsque vous achetez un terrain en TVA à 5.5 %, vous bénéficiez également d’une TVA à 5.5% sur votre construction. Vous pouvez aussi prétendre à un prêt à taux 0 bonifié dont le montant varie en fonction de la composition de votre famille auquel vous avez également la possibilité d’ajouter un prêt action logement d’un montant de 30 000€ à 1%.
Ce terrain à Montigny-en Gohelle est situé à proximité des commerces, médecins et écoles, proche des grands axes routiers.
Cette maison est une proposition imaginée par Maisons Home Ready, votre constructeur de maisons à Auchy-les-Mines.
MENTIONS LEGALES : Le modèle est totalement adaptable à vos envies et besoins et personnalisable grâce à de nombreuses options de finition. Nous consulter pour plus d’informations. Le prix affiché comprend le coût du terrain et de la construction (frais de notaire et taxes inclus). Les annonces de terrains constructibles sont sélectionnées auprès de nos partenaires fonciers selon disponibilités et autorisation de publicité en vue de construire une maison neuve avec un Contrat de Construction de Maison Individuelle dans le cadre de la loi du 19/12/1990. Ces derniers sont soit des professionnels dûment habilités à la transaction immobilière, soit des particuliers. Les terrains sélectionnés sont disponibles à la date de la première parution de l’annonce. En aucun cas Maisons Home Ready ou ses collaborateurs ne sont propriétaires des terrains, ne jouent un rôle d’intermédiation ou de négociation sur la transaction et ne participent à la vente. Les prix des terrains sont indiqués par nos partenaires fonciers.
Soumis au DPE
Plus d’informations sur le bien
Pièces |
|
| Chambres | 5 |
| Salle de bain | 1 |
Commodités |
|
| Nombre d'étage | 1 |
Éligibilités |
|
| TVA 5.5% | OUI |
Logement proche de Montigny-en-Gohelle (10 km)
Nous vous proposons de découvrir aussi cette sélection de logements situés à proximité de Montigny-en-Gohelle et qui seraient susceptibles de vous intéresser.
259 000 €
Pavillon Montigny en Gohelle
Maison neuve à construireNous vous proposons ce projet de Maison…
214 898 €
Maison à construire à Méricourt (62680)
A construire à Méricourt maison de plain piedÀ construire à…
234 469 €
Maison à construire à Wingles (62410)
Maison à construire à WinglesEmplacement privilégié pour construire cette maison…
177 703 €
Maison à construire à Avion (62210)
Maison France Confort vous propose cette maison évolutive à construire…
211 796 €
Maison à construire à Avion (62210)
Carole DOLLET Maison France Confort vous propose cette maison contemporaine…
211 796 €
Maison à construire à Avion (62210)
Carole DOLLET Maison France Confort vous propose cette maison contemporaine…
317 673 €
Maison à construire à Billy-Montigny (62420)
Projet de construction sur la commune de Billy-Montigny en lotissement,…
86 890 €
Terrain à bâtir à Billy-Montigny (62420)
Vous cherchez à faire construire sur le secteur de Lens…