Mas provençal d’exception de 300 m² – Propriété historique sur 1 hectare – Saint-Raphaël, aux portes de l’Estérel
2 200 000 €
Référence : MMVA250430083700
- 300 m²
- 7 333 €/m²
Mas provençal d’exception de 300 m² – Propriété historique sur 1 hectare – Saint-Raphaël, aux portes de l’Estérel
Bienvenue chez Abriculteurs, l’agence familiale qui s’engage à un service d’exception.
Découvrez une présentation soignée de ce bien : photos professionnelles, plan détaillé et visite virtuelle immersive pour vous projeter. Faites confiance à notre expertise pour transformer vos projets immobiliers en réussites remarquables.
Découvrez cette propriété de caractère :
Édifié dans les années 1940 par l’architecte Jean Hellet, selon les principes du nombre d’or, ce mas en pierre de l’Estérel développe une surface habitable totale de 300,25 m², répartie sur trois niveaux, au cœur d’un terrain plat et arboré de 10 000 m², sans aucun vis-à-vis.
La maison s’ouvre sur de vastes espaces de réception baignés de lumière, organisés autour d’un double salon-séjour de plus de 63 m², sublimé par une cheminée monumentale, offrant une atmosphère chaleureuse et authentique. Ces volumes se prolongent naturellement par une salle à manger indépendante d’environ 25 m², une bibliothèque et un bureau, idéals pour une vie de famille ou des réceptions élégantes.
La cuisine spacieuse, fonctionnelle et conviviale, dispose d’un cellier attenant et de nombreux rangements.
Le rez-de-jardin, véritable cœur de la maison, développe environ 236 m² habitables. Il comprend une entrée, plusieurs dégagements, deux WC, une buanderie, une première chambre avec salle d’eau, ainsi qu’une suite parentale composée d’une chambre, d’un dressing et d’une salle de bain. L’ensemble offre une circulation fluide, des volumes généreux et une excellente luminosité.
L’étage, d’une surface d’environ 58,5 m² habitables, accueille deux chambres, deux salles de bain, un dressing, un WC et des dégagements avec rangements intégrés. Cet espace constitue un niveau nuit indépendant, propice au calme et à l’intimité.
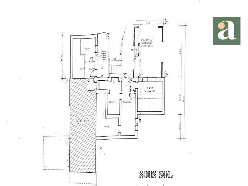
Le sous-sol comprend une partie habitable d’environ 24,75 m², aménagée en studio indépendant avec pièce principale, cuisine, placard et salle d’eau avec WC, idéal pour recevoir famille ou invités, ou envisager une activité complémentaire. Il dispose également de nombreuses annexes non habitables – bureau, atelier, local gaz, chaufferie, accès cave et cave à vin – représentant environ 104 m² supplémentaires, parfaitement adaptés au stockage, aux loisirs ou aux usages techniques.
À l’extérieur, le parc paysager accueille une piscine avec pool house, des espaces de détente, des arbres centenaires et une vue dégagée sur le massif de l’Estérel, dans un environnement naturel préservé.
Partie équestre :
La propriété dispose d’un terrain parfaitement adapté à un usage équestre, avec 2 box existants et une ancienne carrière à réhabiliter, offrant un fort potentiel pour les passionnés de chevaux.
Localisation :
Située dans un quartier résidentiel recherché de Saint-Raphaël, aux portes de l’Estérel, la propriété bénéficie d’un emplacement stratégique :
– Entre Cannes et Saint-Tropez
– À seulement 8 minutes des plages
– À proximité immédiate des golfs
– Accès rapide aux commodités et axes principaux
Les + du bien :
– Propriété d’exception entre mer et Estérel
– Architecture historique et matériaux nobles
– Terrain plat de 10 000 m² sans vis-à-vis
– Piscine et pool house
– Studio indépendant
– Potentiel équestre
– 2 forages et autonomie en eau
– Calme absolu et environnement naturel préservé
À noter :
– Taxe foncière : 5 164 € / an
– État du bien : bon état, maison entretenue
– Rafraîchissement léger à prévoir selon projet décoratif
– Carrière équestre à réhabiliter
– Tout à l’égout
– Bien non soumis au statut de copropriété
– Consommation conventionnelle (kWhEP/m².an) : D
– Estimation des émissions (kg CO₂/m².an) : B
Prix de vente :
2 200 000 € TTC
(Honoraires Abriculteurs à la charge du vendeur)
Les informations sur les risques auxquels ce bien est exposé sont disponibles sur le site Géorisques : www.georisques.gouv.fr
Annonce rédigée sous la responsabilité éditoriale de la SASU Inov’You, immatriculée au RSAC de Nice sous le n° 851 223 610, siège social situé 14 rue Foncet, 06000 Nice, sans détention de fonds, agissant pour le compte de la SARL Abriculteurs Immobilier, immatriculée sous le SIREN n° 837 704 584, titulaire de la carte professionnelle n° CPI 7501 2018 000 025 842 délivrée par la CCI de Paris Île-de-France.
Les informations sur les risques auxquels ce bien est exposé sont disponibles sur le site www.georisques.gouv.fr
Bienvenue chez Abriculteurs, l’agence familiale qui s’engage à un service d’exception.
Découvrez une présentation soignée de ce bien : photos professionnelles, plan détaillé et visite virtuelle immersive pour vous projeter. Faites confiance à notre expertise pour transformer vos projets immobiliers en réussites remarquables.
Découvrez cette propriété de caractère :
Édifié dans les années 1940 par l’architecte Jean Hellet, selon les principes du nombre d’or, ce mas en pierre de l’Estérel développe une surface habitable totale de 300,25 m², répartie sur trois niveaux, au cœur d’un terrain plat et arboré de 10 000 m², sans aucun vis-à-vis.
La maison s’ouvre sur de vastes espaces de réception baignés de lumière, organisés autour d’un double salon-séjour de plus de 63 m², sublimé par une cheminée monumentale, offrant une atmosphère chaleureuse et authentique. Ces volumes se prolongent naturellement par une salle à manger indépendante d’environ 25 m², une bibliothèque et un bureau, idéals pour une vie de famille ou des réceptions élégantes.
La cuisine spacieuse, fonctionnelle et conviviale, dispose d’un cellier attenant et de nombreux rangements.
Le rez-de-jardin, véritable cœur de la maison, développe environ 236 m² habitables. Il comprend une entrée, plusieurs dégagements, deux WC, une buanderie, une première chambre avec salle d’eau, ainsi qu’une suite parentale composée d’une chambre, d’un dressing et d’une salle de bain. L’ensemble offre une circulation fluide, des volumes généreux et une excellente luminosité.
L’étage, d’une surface d’environ 58,5 m² habitables, accueille deux chambres, deux salles de bain, un dressing, un WC et des dégagements avec rangements intégrés. Cet espace constitue un niveau nuit indépendant, propice au calme et à l’intimité.
Le sous-sol comprend une partie habitable d’environ 24,75 m², aménagée en studio indépendant avec pièce principale, cuisine, placard et salle d’eau avec WC, idéal pour recevoir famille ou invités, ou envisager une activité complémentaire. Il dispose également de nombreuses annexes non habitables – bureau, atelier, local gaz, chaufferie, accès cave et cave à vin – représentant environ 104 m² supplémentaires, parfaitement adaptés au stockage, aux loisirs ou aux usages techniques.
À l’extérieur, le parc paysager accueille une piscine avec pool house, des espaces de détente, des arbres centenaires et une vue dégagée sur le massif de l’Estérel, dans un environnement naturel préservé.
Partie équestre :
La propriété dispose d’un terrain parfaitement adapté à un usage équestre, avec 2 box existants et une ancienne carrière à réhabiliter, offrant un fort potentiel pour les passionnés de chevaux.
Localisation :
Située dans un quartier résidentiel recherché de Saint-Raphaël, aux portes de l’Estérel, la propriété bénéficie d’un emplacement stratégique :
– Entre Cannes et Saint-Tropez
– À seulement 8 minutes des plages
– À proximité immédiate des golfs
– Accès rapide aux commodités et axes principaux
Les + du bien :
– Propriété d’exception entre mer et Estérel
– Architecture historique et matériaux nobles
– Terrain plat de 10 000 m² sans vis-à-vis
– Piscine et pool house
– Studio indépendant
– Potentiel équestre
– 2 forages et autonomie en eau
– Calme absolu et environnement naturel préservé
À noter :
– Taxe foncière : 5 164 € / an
– État du bien : bon état, maison entretenue
– Rafraîchissement léger à prévoir selon projet décoratif
– Carrière équestre à réhabiliter
– Tout à l’égout
– Bien non soumis au statut de copropriété
– Consommation conventionnelle (kWhEP/m².an) : D
– Estimation des émissions (kg CO₂/m².an) : B
Prix de vente :
2 200 000 € TTC
(Honoraires Abriculteurs à la charge du vendeur)
Les informations sur les risques auxquels ce bien est exposé sont disponibles sur le site Géorisques : www.georisques.gouv.fr
Annonce rédigée sous la responsabilité éditoriale de la SASU Inov’You, immatriculée au RSAC de Nice sous le n° 851 223 610, siège social situé 14 rue Foncet, 06000 Nice, sans détention de fonds, agissant pour le compte de la SARL Abriculteurs Immobilier, immatriculée sous le SIREN n° 837 704 584, titulaire de la carte professionnelle n° CPI 7501 2018 000 025 842 délivrée par la CCI de Paris Île-de-France.
Les informations sur les risques auxquels ce bien est exposé sont disponibles sur le site www.georisques.gouv.fr
Diagnostics énergétiques
Consommation énergétique (DPE)
Émissions de Gaz à effet de serre (GES)
Plus d’informations sur le bien
Pièces |
|
| Nombre de pièces | 8 |
| Chambres | 4 |
| Salle de bain | 1 |
Commodités |
|
| Nombre d'étage | 2 |
| Cave | OUI |
Extérieur |
|
| Piscine | OUI |
Energétique |
|
| Année de construction | 1944 |
Logement proche de Saint-Raphaël (10 km)
Nous vous proposons de découvrir aussi cette sélection de logements situés à proximité de Saint-Raphaël et qui seraient susceptibles de vous intéresser.
2 200 000 €
Mas provençal d’exception de 300 m² –…
Mas provençal d'exception de 300 m² – Propriété historique sur…
570 000 €
Fréjus – Maison avec dépendances et grand…
Homeloop, votre partenaire immobilier depuis 2016, vous propose cette propriété…
1 890 000 €
VENTE : maison de 7 pièces (215…
Villa de Prestige avec Vue Mer Panoramique Située en position…