SAULNY – Appartement 3 pièces 70 m2

155 000 €
Référence : 7452104
  • 66 m²
  • 2 348 €/m²
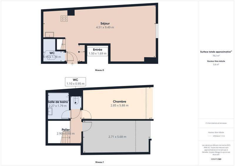
Partenaire de votre vie immobilière depuis 2016, homeloop vous propose en exclusivité, dans le village de Saulny, ce charmant duplex situé dans une petite copropriété de 3 lots, entièrement rénovée en 2007.

Cet appartement, d’une surface de 69 m2 carrez (85 m2 au sol) se compose de :

rez-de-chaussée : une entrée avec placards, une cuisine ouverte sur pièce de vie, un WC indépendant.

À l’étage : deux chambres, une salle de bains et un WC séparé.

Les combles, isolés, offrent un espace supplémentaire de rangement.

Le : Une buanderie sur le palier pour encore plus de commodités.

Ce charmant village séduit par son ambiance calme et naturelle, tout en étant extrêmement bien desservi. À moins de 15 minutes de Metz, vous bénéficierez d’un accès rapide à l’A31, aux commerces, écoles et à la gare SNCF de woippy. Un environnement parfait pour une vie familiale épanouie.

• Le prix affiché comprend les honoraires à la charge des acquéreurs.

• DPE C(160) & A(4)

Visite virtuelle disponible.

Vous souhaitez visiter ? Contactez Oriane de Coligny au : (Numéro supprimé)

Rapidité, simplicité, sécurité et sérénité : choisissez homeloop pour vendre votre bien

Oriane DE COLIGNY (EI) Agent Commercial – Numéro RSAC : 979 324 092 – METZ

Diagnostics énergétiques

Consommation énergétique (DPE)

ABCDEFG

Émissions de Gaz à effet de serre (GES)

Information sur les émissions de gaz à effet de serre non disponible.

Plus d’informations sur le bien

Pièces

Nombre de pièces 3
Chambres 2
Salle de bain 1

Commodités

Interphone OUI

Energétique

Année de construction 2007

CONTACTER

+ Modifier le message

Logement proche de Saulny (10 km)

Nous vous proposons de découvrir aussi cette sélection de logements situés à proximité de Saulny et qui seraient susceptibles de vous intéresser.

Image de l'annonce SAULNY - Appartement 3 pièces 70 m2
155 000 €

SAULNY – Appartement 3 pièces 70 m2

Partenaire de votre vie immobilière depuis 2016, homeloop vous propose…

  • 66 m²
  • 2 348 €/m²
Image de l'annonce SCY CHAZELLES - Appartement 1 pièces 28…
75 000 €

SCY CHAZELLES – Appartement 1 pièces 28…

Partenaire de votre vie immobilière depuis 2016, homeloop vous propose…

  • 60 m²
  • 1 250 €/m²
Image de l'annonce SAULNY - Maison 4 pièces 112 m2
220 000 €

SAULNY – Maison 4 pièces 112 m2

SAULNY – 3 CHAMBRES – TERRASSE – GARAGE – CAVEPartenaire…

  • 145 m²
  • 1 517 €/m²
Image de l'annonce SABLON - Appartement 2 pièces 46 m2
85 000 €

SABLON – Appartement 2 pièces 46 m2

Idéal investisseur!Rue des Francs – Partenaire de votre vie immobilière…

  • 27 m²
  • 3 148 €/m²
Image de l'annonce Appartement 7 pièces de 214 m² -…
570 000 €

Appartement 7 pièces de 214 m² -…

18 Boulevard Clémenceau – Partenaire de votre vie immobilière depuis…

  • 10 m²
  • 57 000 €/m²
Image de l'annonce METZ VACQUINIÈRE - Appartement 7 pièces 218…
445 000 €

METZ VACQUINIÈRE – Appartement 7 pièces 218…

Partenaire de votre vie immobilière depuis 2016, Homeloop vous propose…

  • 222 m²
  • 2 005 €/m²
Image de l'annonce ROZERIEULLES - LOCAL COMMERCIAL INDÉPENDANT 335 m2
459 000 €

ROZERIEULLES – LOCAL COMMERCIAL INDÉPENDANT 335 m2

Partenaire de votre vie immobilière depuis 2016, Homeloop vous propose…

  • 320 m²
  • 1 434 €/m²
Image de l'annonce SCY CHAZELLES - Appartement 3 pièces 80…
209 000 €

SCY CHAZELLES – Appartement 3 pièces 80…

Situé à Scy-Chazelles, dans un environnement calme et recherché, homeloop…

  • 80 m²
  • 2 613 €/m²
Image de l'annonce NOUVEAU A METZ: La Passerelle
206 000 €

NOUVEAU A METZ: La Passerelle

Nouvelle résidence 'La Passerelle' idéalement située à Metz ! Découvrez…

  • 59.81 m²
  • 3 444 €/m²
Image de l'annonce NOUVEAU A METZ: La Passerelle
250 000 €

NOUVEAU A METZ: La Passerelle

Nouvelle résidence 'La Passerelle' idéalement située à Metz ! Découvrez…

  • 78.64 m²
  • 3 179 €/m²

L’actualité immobilière à Saulny