Charmante villa T3 en duplex de 73 m² – Jardin et garage
219 000 €
Référence : MMVM_2603_74_31700
- 73 m²
- 3 000 €/m²
Bienvenue chez Abriculteurs, l’agence familiale qui s’engage à un service d’exception. Découvrez une présentation soignée de ce bien : des photos professionnelles, un plan détaillé et une visite virtuelle immersive pour vous projeter. Faites confiance à notre expertise pour transformer vos projets immobiliers en réussites remarquables.
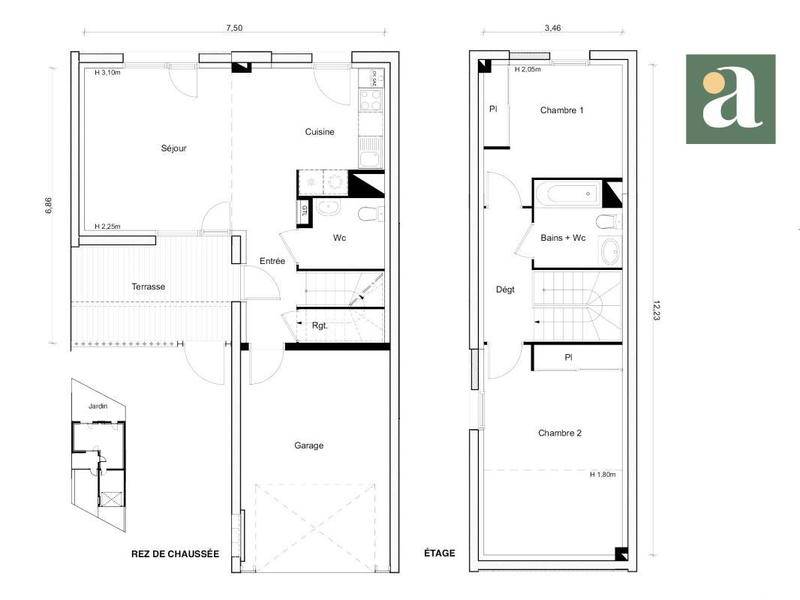
Découvrez cette villa T3 en duplex, située au sein de la résidence récente et appréciée Le Clos d’Agate, à Cornebarrieu.
La maison s’ouvre au rez-de-chaussée sur une entrée avec rangement, une cuisine ouverte moderne et fonctionnelle, équipée de meubles hauts et bas, plaques vitrocéramiques, hotte et emplacements pour four et lave-vaisselle.
La cuisine se prolonge sur un séjour lumineux, donnant accès à une terrasse et à un jardin privatif d’environ 32 m², idéal pour profiter des beaux jours.
Un WC indépendant complète ce niveau.
Le premier étage est composé de deux chambres avec rangements intégrés ainsi que d’une salle de bains avec WC.
Un garage fermé de 20,8 m² ainsi qu’une place de stationnement extérieure complètent ce bien.
Le logement bénéficie d’un chauffage individuel au gaz, offrant confort et maîtrise des consommations.
La villa est idéalement située à proximité des commerces, écoles, transports et bassins d’emploi aéronautiques, tout en conservant un environnement résidentiel calme.
Les + du bien :
– Villa récente en duplex / Construction récente (2017)
– Jardin privatif et terrasse
– Garage fermé + stationnement
– Bonne performance énergétique
– Résidence bien entretenue, sans procédure
– Résidence sécurisée, calme et verdoyante
– Proximité immédiate des commerces, écoles et transports
– Accès rapide aux bassins d’emploi Airbus et Blagnac
Idéal pour une résidence principale, un premier achat ou un investissement locatif
(bien précédemment loué 900 €/mois)
À noter :
– Taxe foncière : 1 145 € / an
– Charges courantes annuelles : environ 553 € / an
(hors consommation individuelle de gaz)
– Coût annuel du chauffage : inclus dans les estimations énergétiques
– État du bien : bon état général
– Le bien est soumis au statut de copropriété, 105 lots
– Pas de procédure en cours
– Tout-à-l’égout : oui
Performance énergétique
– Consommation conventionnelle (kWhEP/m².an) : 89 (Classe C)
– Estimation des émissions (kg CO₂/m².an) : 17 (Classe C)
– Coût de l’énergie min / max : 650 € / 930 € / an
– Année de référence des prix : 2023
Prix de vente
219 000 € TTC
(Honoraires Abriculteurs à la charge du vendeur)
VENTE PAR DÉLÉGATION DE MANDAT
Les informations sur les risques auxquels ce bien est exposé sont disponibles sur le site Géorisques : www.georisques.gouv.fr
Annonce rédigée sous la responsabilité éditoriale de la SASU Inov’You, immatriculée au RSAC de Nice sous le n° 851 223 610, siège social situé 14 rue Foncet, 06000 Nice, sans détention de fonds, agissant pour le compte de la SARL Abriculteurs Immobilier, immatriculée sous le SIREN n° 837 704 584, titulaire de la carte professionnelle n° CPI 7501 2018 000 025 842, délivrée par la CCI de Paris Île-de-France.
Les informations sur les risques auxquels ce bien est exposé sont disponibles sur le site www.georisques.gouv.fr
Découvrez cette villa T3 en duplex, située au sein de la résidence récente et appréciée Le Clos d’Agate, à Cornebarrieu.
La maison s’ouvre au rez-de-chaussée sur une entrée avec rangement, une cuisine ouverte moderne et fonctionnelle, équipée de meubles hauts et bas, plaques vitrocéramiques, hotte et emplacements pour four et lave-vaisselle.
La cuisine se prolonge sur un séjour lumineux, donnant accès à une terrasse et à un jardin privatif d’environ 32 m², idéal pour profiter des beaux jours.
Un WC indépendant complète ce niveau.
Le premier étage est composé de deux chambres avec rangements intégrés ainsi que d’une salle de bains avec WC.
Un garage fermé de 20,8 m² ainsi qu’une place de stationnement extérieure complètent ce bien.
Le logement bénéficie d’un chauffage individuel au gaz, offrant confort et maîtrise des consommations.
La villa est idéalement située à proximité des commerces, écoles, transports et bassins d’emploi aéronautiques, tout en conservant un environnement résidentiel calme.
Les + du bien :
– Villa récente en duplex / Construction récente (2017)
– Jardin privatif et terrasse
– Garage fermé + stationnement
– Bonne performance énergétique
– Résidence bien entretenue, sans procédure
– Résidence sécurisée, calme et verdoyante
– Proximité immédiate des commerces, écoles et transports
– Accès rapide aux bassins d’emploi Airbus et Blagnac
Idéal pour une résidence principale, un premier achat ou un investissement locatif
(bien précédemment loué 900 €/mois)
À noter :
– Taxe foncière : 1 145 € / an
– Charges courantes annuelles : environ 553 € / an
(hors consommation individuelle de gaz)
– Coût annuel du chauffage : inclus dans les estimations énergétiques
– État du bien : bon état général
– Le bien est soumis au statut de copropriété, 105 lots
– Pas de procédure en cours
– Tout-à-l’égout : oui
Performance énergétique
– Consommation conventionnelle (kWhEP/m².an) : 89 (Classe C)
– Estimation des émissions (kg CO₂/m².an) : 17 (Classe C)
– Coût de l’énergie min / max : 650 € / 930 € / an
– Année de référence des prix : 2023
Prix de vente
219 000 € TTC
(Honoraires Abriculteurs à la charge du vendeur)
VENTE PAR DÉLÉGATION DE MANDAT
Les informations sur les risques auxquels ce bien est exposé sont disponibles sur le site Géorisques : www.georisques.gouv.fr
Annonce rédigée sous la responsabilité éditoriale de la SASU Inov’You, immatriculée au RSAC de Nice sous le n° 851 223 610, siège social situé 14 rue Foncet, 06000 Nice, sans détention de fonds, agissant pour le compte de la SARL Abriculteurs Immobilier, immatriculée sous le SIREN n° 837 704 584, titulaire de la carte professionnelle n° CPI 7501 2018 000 025 842, délivrée par la CCI de Paris Île-de-France.
Les informations sur les risques auxquels ce bien est exposé sont disponibles sur le site www.georisques.gouv.fr
Diagnostics énergétiques
Consommation énergétique (DPE)
Émissions de Gaz à effet de serre (GES)
Plus d’informations sur le bien
Pièces |
|
| Nombre de pièces | 3 |
| Chambres | 2 |
| Salle de bain | 1 |
Commodités |
|
| Nombre d'étage | 2 |
Extérieur |
|
| Terrasse | OUI |
Logement proche de Cornebarrieu (10 km)
Nous vous proposons de découvrir aussi cette sélection de logements situés à proximité de Cornebarrieu et qui seraient susceptibles de vous intéresser.
219 000 €
Charmante villa T3 en duplex de 73…
Bienvenue chez Abriculteurs, l'agence familiale qui s'engage à un service…
374 000 €
MAISON 160m² | 4 CH + ESPACE…
Si vous cherchez une maison sans saveur, passez votre chemin.…
185 000 €
TYPE 3 – COLOMIERS – LES MAROTS
Découvrez ce charmant appartement de type 3, d'une surface de…
179 000 €
Appartement T3 au coeur d’Aucamville avec garage…
En exclusivité – Superbe T3 avec grande terrasse et garage…
199 500 €
Colomiers Quartier Garroussal – T3 avec terrasse,…
Colomiers Quartier Garroussal – T3 avec terrasse, dernier étage et…
229 900 €
Appartement T3 de 60 m² avec balcon,…
Situé au cœur du centre-ville de Tournefeuille, cet appartement de…
250 000 €
T3 Lumineux de 70 m² – Garage
Découvrez ce superbe appartement de type 3, alliant confort moderne…
220 000 €
Tournefeuille : T3 65 m² d’exception en…
Tournefeuille : T3 d'exception en Rez-de-Jardin Sécurisé avec Garage BoxéAu…